Tönisvorst: Sanierte 3 Zimmer Wohnung in zentraler Lage

47918 Tönisvorst

Objekt-Nr.:66546-P2066

895 €

Kaltmiete

Beschreibung

Diese attraktive, ca. 73 m² große Wohnung befindet sich im ersten Obergeschoss eines gepflegten Mehrparteienhauses und wird derzeit umfassend renoviert. Nach Abschluss der Arbeiten präsentiert sich die Wohnung in einem modernen und zeitgemäßen Zustand und bietet ein angenehmes Wohnambiente mit durchdachter Raumaufteilung. Das großzügige Wohnzimmer überzeugt durch seine offene Gestaltung und eine besonders gute Belichtung, die für eine freundliche und einladende Atmosphäre sorgt. Große Fensterflächen lassen viel Tageslicht herein und schaffen einen hellen Lebensmittelpunkt. Die Wohnung verfügt über zwei helle und freundlich gestaltete Schlafzimmer, die vielfältige Nutzungsmöglichkeiten bieten – ideal als Schlaf-, Kinder- oder Arbeitszimmer. Das modernisierte Badezimmer ist funktional und zeitgemäß ausgestattet und verfügt über eine begehbare Dusche, ein WC sowie ein Waschbecken. Im Küchenbereich wird derzeit eine neue Einbauküche mit sämtlichen Elektrogeräten installiert, sodass zukünftige Mieter von einer sofort nutzbaren und modernen Küchenausstattung profitieren. Die Miete der Küche kostet im Monat 98,50 EUR. Die Kombination aus laufender Renovierung, guter Raumaufteilung und der Lage innerhalb eines gepflegten Mehrparteienhauses macht diese Wohnung besonders attraktiv für Mieter, die Wert auf modernes Wohnen in angenehmer Umgebung legen. UPDATE: Die Wohnung ist mittlerweile fertig saniert. Das Badezimmer hat große hellgraue Fliesen und eine bodentiefe Dusche erhalten. Ebenso wurde die Küche eingebaut.

Ausstattung

- Renovierter Zustand - 3 Zimmer Wohnung - Zentrale Lage - Begehbare Dusche - Erster Stock - Lichtdurchflutete Atmosphäre - Eigener Kellerraum

Lage

Die Wohnung befindet sich in einer ruhigen und gepflegten Wohnlage innerhalb eines gewachsenen Wohnumfeldes. Die Umgebung ist geprägt von Mehrfamilienhäusern sowie einer angenehmen Nachbarschaftsstruktur und bietet eine gute Kombination aus ruhigem Wohnen und einer praktischen Anbindung an die Infrastruktur des täglichen Lebens. Einkaufsmöglichkeiten, Supermärkte, Bäckereien sowie weitere Einrichtungen des täglichen Bedarfs sind in kurzer Zeit erreichbar. Auch Ärzte, Apotheken sowie gastronomische Angebote befinden sich in der näheren Umgebung. Die Anbindung an den öffentlichen Nahverkehr ist gut ausgebaut, sodass umliegende Stadtteile und zentrale Bereiche schnell erreicht werden können. Darüber hinaus bietet die Lage eine gute Verkehrsanbindung für Pendler, sodass sowohl innerstädtische Ziele als auch überregionale Verbindungen bequem erreichbar sind. Grünflächen und Naherholungsmöglichkeiten in der Umgebung laden zu Spaziergängen, sportlichen Aktivitäten und zur Erholung im Freien ein. Insgesamt verbindet die Lage eine angenehme Wohnatmosphäre mit einer praktischen Infrastruktur und macht die Wohnung sowohl für Singles, Paare als auch kleine Familien attraktiv.

47918 Tönisvorst

Die Karte dient lediglich als Orientierungshilfe und stellt nicht die exakte Lage dar. Die vollständige Adresse erhalten Sie bei uns.

Objektdaten

Preise

Kaltmiete

895 €

Warmmiete

1.178,50 €

Nebenkosten

185 €

Heizkosten in NK. enthalten

Ja

Kaution

2.685 €

Informationen

verfügbar ab

01.04.2026

Modernisierungen

2026

Flächen

Wohnfläche

ca. 73,06 

Zimmer

3

Zustand und Bauart

Baujahr

1999

Kategorie

Standard

Zustand

teil/vollrenoviert

Unterkellert

Ja

Räume, Flure und Etagen

Etage

1

Etagen

3

Schlafzimmer

2

Badezimmer

1

Ausstattung

Bad mit

Dusche

Küche

Einbauküche

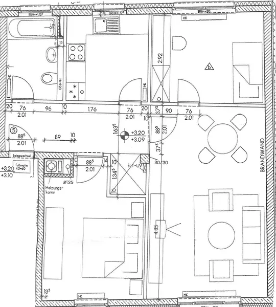
Grundrisse

Energieausweis

Energiedaten

Energieausweistyp

Bedarf

Gültig bis

06.03.2028

Ausstellungsdatum

03.07.2018

Energieeffizienzklasse

B

Wärmewert

60,4 kWh/(m²a)

Baujahr

1999

Wesentlicher Energieträger

Gas

Befeuerungsart

Gas

Heizungsart

Zentralheizung

Energieeffizienz

A+

A

B

C

D

E

F

G

H

0

30

50

75

100

130

160

200

250

Endenergiebedarf

60,4 kWh/(m²a)