Wohnen über den Dächern - Zweifamilienhaus mit traumhafter Aussicht

53721 Siegburg

Objekt-Nr.:66275-8435

699.000 €

Kaufpreis

Beschreibung

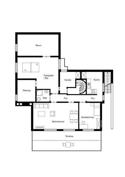
Dieses Zweifamilienhaus bietet einen traumhaften Weitblick ins Gebirge und ins Grüne, der besonders vom Erdgeschoss genossen werden kann. Die Wohnungsgröße im Erdgeschoss beträgt ca. 120 m² und hat einen Mietzins von aktuell 1.400,00 € monatlich. Die Gartengeschosswohnung hat eine Größe von ca. 64 m² und einen aktuellen Mietzins von 675,00 € monatlich. Bei den Beträgen handelt es sich um die Warmmieten, wobei für beide Wohnungen Erhöhungspotenzial besteht. Beim Betreten des Erdgeschosses gelangt man über die Diele direkt in den offen gestalteten Wohn-, Küchen- und Essbereich, der dank hellen Fliesen und bodentiefer Fenster von Licht durchflutet wird und einen herrlichen Ausblick eröffnet. Die Holzbalken und Holzverkleideten Decken sorgen für ein Wohlfühlambiente. Im Wohnzimmer befindet sich außerdem eine großzügige Kaminecke, welche über drei Stufen erreicht werden kann und durch Fenster mit elektrischen Rollläden direkten Ausblick in den Garten bietet. Vom Wohnzimmer aus besteht auch der Zugang zum Balkon, der zum Verweilen und Genießen einlädt. Dieser ist mit einer Markise ausgestattet. Das Schlafzimmer liegt gleich nebenan und bietet ebenfalls einen direkten Balkonzugang. Angrenzend befindet sich ein Badezimmer mit Badewanne und Dusche, das durch ein Tageslichtfenster zusätzlichen Komfort bietet. Ein separates Gäste-WC gleich im Eingangsbereich rundet das Raumangebot dieser Ebene ab. Auch dieses ist mit einem Tageslichtfenster ausgestattet. Beim betreten der Wohnung im Gartengeschoss sind alle Räume durch einen Flur miteinander verbunden. Auf der rechten Seite befindet sich die Küche und zur linken Seite befinden sich das Schlafzimmer, sowie das Wohn- bzw. Esszimmer. Am Ende des Flurs findet man das Badezimmer mit Dusche. Durch die Hanglage und die Bodentiefen Fenster profitieren auch die Räume im Untergeschoss von einer angenehmen Helligkeit und einem Blick in den Gartenbereich. Ein separater Teil des Gartengeschosses verfügt über einen großzügigen Raum, welcher aktuell als Partykeller genutzt wird. Dieser bietet viel Platz für Abstellmöglichkeiten, Fitness oder kreative Projekte. Er steht beiden Mietparteien zur Verfügung. Die Erdgeschosswohnung gelangt direkt über eine Wendeltreppe im Eingangsbereich in den Kellerbereich des Gartengeschosses und auch zu den zum Erdgeschoss gehörigen Räumen wie dem Vorratsraum. Dieses Haus ist vielseitig nutzbar und beispielsweise auch ideal für den Eigenbedarf von Familien geeignet. Ein Bild ist teilweise durch KI-generierte Möbel ergänzt.

Ausstattung

- große Gartenfläche - weitreichender Ausblick ins Grüne - voll vermietet - Garage + lange Einfahrt - bodentiefe Fenster - Gäste-WC mit Tageslichtfenster - genügend Stauraum - separate Eingänge - Erhöhungspotenzial der Miete - Glasfaseranschluss beantragt

Lage

Die Immobilie liegt in einer bevorzugten Wohnlage von Siegburg, die durch eine ruhige und gepflegte Umgebung geprägt ist. In der unmittelbaren Umgebung gibt es Einkaufsmöglichkeiten für den täglichen Bedarf sowie Kindergärten, Schulen und ärztliche Einrichtungen, sodass alle wichtigen Anlaufpunkte schnell erreichbar sind. Die Nachbarschaft zeichnet sich durch eine gewachsene Wohnstruktur mit überwiegend Ein- und Mehrfamilienhäusern aus und bietet ein angenehmes, familienfreundliches Umfeld. Der Freizeitwert ist hoch: Parks, Grünflächen sowie die reizvolle Umgebung des Siebengebirges und der Sieg laden zu Spaziergängen, Radtouren und sportlichen Aktivitäten ein. Auch die Anbindung überzeugt: Über die nahegelegene A3 und die B56 sind sowohl Köln als auch Bonn in kurzer Zeit erreichbar. Der ICE-Bahnhof Siegburg/Bonn ermöglicht zudem eine schnelle Verbindung in die umliegenden Großstädte und darüber hinaus. Somit bietet die Lage am Alten Grenzweg die ideale Kombination aus ruhigem Wohnen, naturnaher Umgebung und ausgezeichneter regionaler sowie überregionaler Erreichbarkeit.

53721 Siegburg

Die Karte dient lediglich als Orientierungshilfe und stellt nicht die exakte Lage dar. Die vollständige Adresse erhalten Sie bei uns.

Objektdaten

Preise

Kaufpreis

699.000 €

Käuferprovision

3,57 % inkl. MwSt.

Informationen

verfügbar ab

nach Vereinbarung

Vermietet

Flächen

Wohnfläche

ca. 184 

Zimmer

4

Grundstücksfläche

ca. 1.727 

Zustand und Bauart

Baujahr

1975

Zustand

gepflegt

Unterkellert

teilweise

Räume, Flure und Etagen

Etagen

2

Schlafzimmer

2

Badezimmer

2

Separate WCs

1

Balkone

1

Terrassen

1

Ausstattung

Gäste-WC

Stellplätze

Freiplatz

3

Garage

1

Grundrisse

Energieausweis

Energiedaten

Energieausweistyp

Bedarf

Gültig bis

2032-09-30

Energieeffizienzklasse

F

Baujahr

1995

Wesentlicher Energieträger

Öl

Befeuerungsart

Öl

Energieeffizienz

A+

A

B

C

D

E

F

G

H

0

30

50

75

100

130

160

200

250

Endenergiebedarf

178,5 kWh/(m²a)