Verkehrsgünstig gelegene, vielseitig nutzbare Bürofläche in Werl

59457 Werl

Objekt-Nr.:20054-2761

1.160 €

Kaltmiete

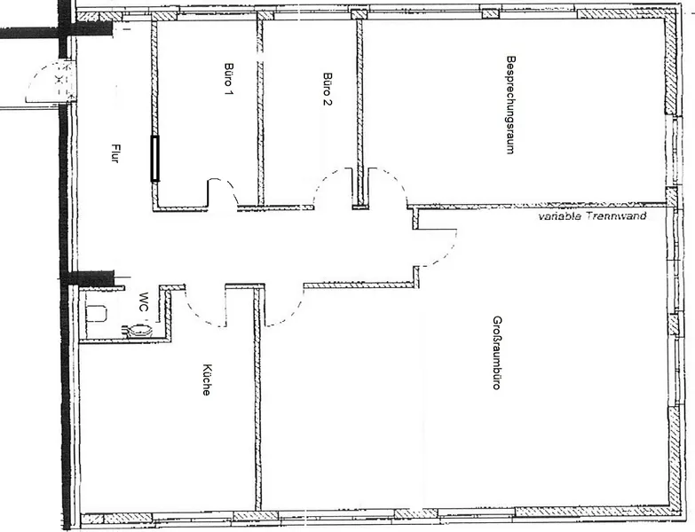
Beschreibung

Das gepflegte Objekt bietet eine Gesamtfläche von etwa 150 m². Die Fläche kann als Büro, Praxis oder Ausstellungsfläche genutzt werden. Die Fläche teilt sich auf in ein Großraumbüro das durch eine variable Trennwand noch ein zusätzliches Büro oder ein Besprechungsraum schaffen kann. Außerdem befindet sich auf der ca. 150 m² großen Fläche ein Pausenraum mit Küche, ein WC, ein Flur und 2 weitere Büros.

Sonstiges

Wir bitten sich bei Interesse mit einer s c h r i f t l i c h e n Anfrage über unsere Homepage oder das Internetportal an uns zu wenden. Wir senden Ihnen dann umgehend ein Exposé per Email zu. Darin enthalten sind die Anschrift der Immobilie und Innenfotos. Wir bitten Sie, sich anhand dieser Möglichkeit einen ersten Eindruck zu verschaffen. Bei näherem Interesse zeigen wir Ihnen die Immobilie gerne bei einer persönlichen Besichtigung.

Lage

Die Räumlichkeiten befinden sich an der viel befahrenen Hammer Straße, die eine der wichtigsten Ausfallstraßen von Werl darstellt. Bis zur Anschlussstelle zur A445 sind es lediglich ca. 1,2 km

59457 Werl

Die Karte dient lediglich als Orientierungshilfe und stellt nicht die exakte Lage dar. Die vollständige Adresse erhalten Sie bei uns.

Objektdaten

Preise

Kaltmiete

1.160 €

Nebenkosten

350 €

Kaution

2.320 €

Mieterprovision

2.38 MM

Informationen

verfügbar ab

nach Vereinbarung

Provisionspflichtig

Flächen

Nutzfläche

ca. 410 

Gesamtfläche

ca. 150 

Bürofläche

ca. 150 

Zustand und Bauart

Baujahr

1996

Zustand

gepflegt

Energieausweis

Energiedaten

Energieausweistyp

Verbrauch

Gültig bis

20.10.2029

Ausstellungsdatum

21.10.2019

Wärmewert

76 kWh/(m²a)

Stromwert

15 kWh/(m²a)

Baujahr

1996

Wesentlicher Energieträger

Gas

Befeuerungsart

Gas

Heizungsart

Zentralheizung

Energieeffizienz

A+

A

B

C

D

E

F

G

H

0

30

50

75

100

130

160

200

250

Endenergieverbrauch

76 kWh/(m²a)