Hier ist Ihr Geld gut angelegt. Top Mieter!

59929 Brilon

Objekt-Nr.:20066-1656

235.000 €

Kaufpreis

Beschreibung

Solide und werthaltige Kapitalanlage im Zentrum von Brilon. Die Büro-/Praxisfläche mit einer Größe 136 m² ist sehr gut an einen namenhaften caritativen Betreiber vermietet. Die moderne Anlage indem sich die Gewerbefläche befindet, wurde 1997 errichtet. Gleichzeitig befinden sich 27 Seniorenwohnungen in dem Objekt. Die Nähe zum Zentrum und die gute Erreichbarkeit sind weitere Pluspunkte. Die Nettomieteinnahmen belaufen sich auf EUR 10.596 p.a.. Das seit vielen Jahren laufende Mietverhältniss wird langfristig fortgesetzt. Der Mietermix aus Senioren und sozialem Anbieter garantiert eine nachhaltige Geldanlage.

Ausstattung

Moderne und helle Ausstattung mit barrierefreien Eingang zu den Büroflächen. Kfz.-Außenstellplätze für Besucher.

Lage

In zentraler und stark frequentierter Lage von Brilon befindet sich diese sehr gut vermietete Büro-/Praxisfläche. Eine Bushaltestelle ist direkt vorm Objekt. Die Innenstadt mit Fußgängerzone ist in 5 Fußminuten erreichbar. Der Bahnhof in 10 Minuten Fußweg. Das Naherholungsgebiet Drübel und der Kreishauspark liegen vor der Tür.

59929 Brilon

Die Karte dient lediglich als Orientierungshilfe und stellt nicht die exakte Lage dar. Die vollständige Adresse erhalten Sie bei uns.

Objektdaten

Preise

Kaufpreis

235.000 €

Mieteinnahmen (Ist)

10.596 €

Käuferprovision

3.57 %

Informationen

verfügbar ab

vermietet

Provisionspflichtig

Flächen

Zimmer

5

Nutzfläche

ca. 136 

Gesamtfläche

ca. 136 

Bürofläche

ca. 136 

Zustand und Bauart

Baujahr

1997

Zustand

neuwertig

Stellplätze

Freiplatz

3

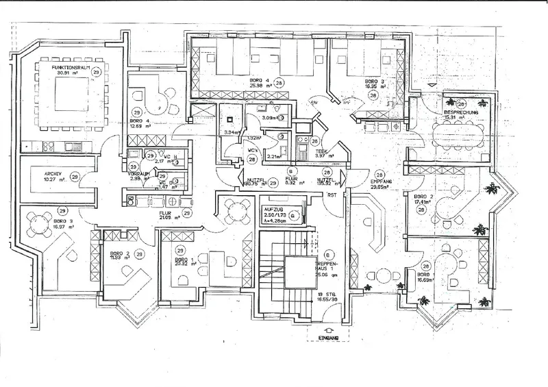
Grundrisse

Energieausweis

Energiedaten

Energieausweistyp

Verbrauch

Gültig bis

25.06.2030

Ausstellungsdatum

26.06.2020

Mit Warmwasser

Wärmewert

87 kWh/(m²a)

Baujahr

1997

Wesentlicher Energieträger

Öl

Befeuerungsart

Öl

Heizungsart

Zentralheizung

Energieeffizienz

A+

A

B

C

D

E

F

G

H

0

30

50

75

100

130

160

200

250

Endenergieverbrauch

87 kWh/(m²a)