Große Bürofläche mit Lagerhalle und bebaubarem Grundstück

53489 Sinzig

Objekt-Nr.:66275-8573

1.590.000 €

Kaufpreis

Beschreibung

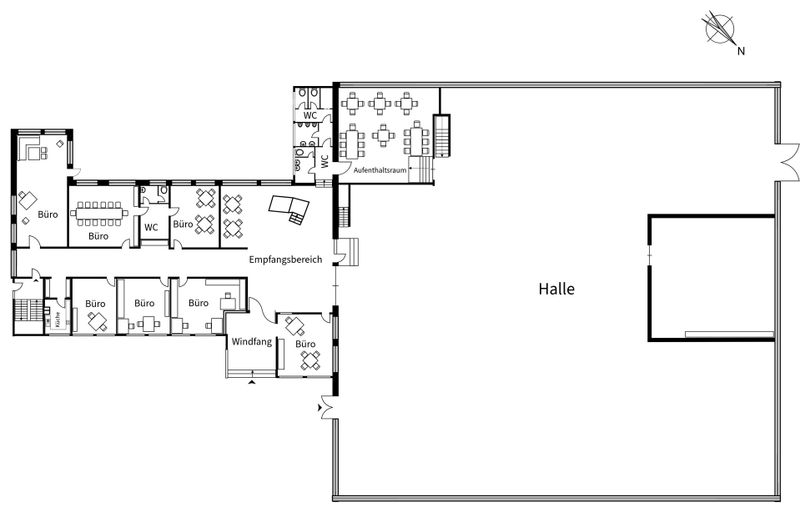
Diese großzügige und vielseitig nutzbare Gewerbeeinheit mit einer Fläche von ca. 420 m² steht zum Verkauf und bietet ideale Voraussetzungen für unterschiedliche Nutzungskonzepte. Die flexible Raumaufteilung ermöglicht eine individuelle Gestaltung und umfasst neben klassischen Büroflächen auch Funktionsräume, Umkleidebereiche sowie eine WC-Anlage. Dadurch eignet sich die Immobilie sowohl für Dienstleistungsunternehmen als auch als Verwaltungsgebäude oder andere gewerbliche Zwecke. Ein besonderes Highlight ist die verkehrsgünstige Lage zwischen zwei Zubringern zur B9, die eine hervorragende Erreichbarkeit sowohl für Mitarbeiter als auch für Kunden und Geschäftspartner sicherstellt. Auf dem Grundstück stehen zudem ausreichend Park- und Freiflächen zur Verfügung, darunter bis zu 15 Mitarbeiterstellplätze. Das Gebäude wurde laufend instand gehalten; im Jahr 2005 wurden unter anderem die Fenster sowie die Ölheizung erneuert. Im Angebot enthalten ist außerdem ein angrenzendes, derzeit unbebautes Grundstück mit einer Größe von 911 m². Dieses eröffnet zusätzliche Entwicklungs- und Nutzungsmöglichkeiten und kann – ebenso wie das bebaute Grundstück – bei Interesse auch separat erworben werden.

Ausstattung

- Flexible Unterteilungsmöglichkeiten - Separater Umkleidebereich mit WC-Anlagen - Angrenzendes noch nicht bebautes Grundstück - Ausreichend Parkplätze und Freiflächen - Verschieden große Büro- und Funktionsräume - lichtdurchflutete Räume - sehr gute Erreichbarkeit - Möglichkeit, einen Teil der Fläche im Obergeschoss mit ca. 150 m² als Wohnfläche zu nutzen

Lage

Die Produktionshalle liegt im Gewerbe- und Industriepark Sinzig, unmittelbar angrenzend an die B9 und etwa 6 km von der Abfahrt Sinzig der BAB 61 entfernt. Das Gewerbegebiet wurde Ende der 1980er Jahre entwickelt. Seither haben sich dort rund 140 Unternehmen angesiedelt. Der Branchenmix umfasst u. a. das Autohaus Konrad GmbH & Co. KG, die Autowerkstatt Merbag Mitte-West GmbH sowie einen OBI Baumarkt und weitere Fachmärkte. Die Produktionshalle liegt verkehrsgünstig im unmittelbaren Einfahrtsbereich zum Gewerbegebiet und bietet durch ihre Lage zwischen zwei Zubringern zur B9 eine optimale Anbindung an das regionale und überregionale Verkehrsnetz. Durch die Nähe zur Autobahn A61 sind zudem die Städte Bonn, Koblenz und das Ruhrgebiet schnell erreichbar. Zusätzlich sorgen die in unmittelbarer Umgebung vorhandenen Einkaufsmöglichkeiten, Gastronomieangebote und Dienstleister für eine attraktive Arbeitsumgebung. Auch der öffentliche Nahverkehr ist gut ausgebaut und bietet eine schnelle Verbindung zum Stadtzentrum von Sinzig und den umliegenden Gemeinden.

53489 Sinzig

Die Karte dient lediglich als Orientierungshilfe und stellt nicht die exakte Lage dar. Die vollständige Adresse erhalten Sie bei uns.

Objektdaten

Preise

Kaufpreis

1.590.000 €

Informationen

verfügbar ab

nach Vereinbarung

Flächen

Zimmer

11

Gesamtfläche

ca. 7.953 

Bürofläche

ca. 420 

Grundstücksfläche

ca. 7.953 

Zustand und Bauart

Baujahr

1975

Kategorie

Standard

Zustand

gepflegt

Unterkellert

teilweise

Ausstattung

Boden

Fliesen, Laminat

Stellplätze

Stellplatz

10

Grundrisse

Energieausweis

Energiedaten

Energieausweistyp

Verbrauch

Gültig bis

2034-06-25

Energieeffizienzklasse

H

Baujahr

1975

Wesentlicher Energieträger

Öl

Energieeffizienz

A+

A

B

C

D

E

F

G

H

0

30

50

75

100

130

160

200

250

Wärmewert

203,1 kWh/(m²a)