Beschreibung
Erstbezug im schönem Städtchen Linnich - zentral und doch sehr ruhig gelegen. Die 90 qm Wohnung mit 3 Zimmer liegt in einer schönen Wohngegend, direkt an der Ruhr. Hier erwartet Sie eine gehobene Ausstattung, Fliesenboden, Fußbodenheizung, ein großes Bad mit Badewanne und Fenster, sowie ein exklusiver Bauschnitt mit einer offenen Küche. Auf weitere Highlights, die das Wohnen in dieser Ambiente zu einem besonderem Erlebnis gestalten wurde ebenfalls geachtet. Hier werden Sie eine Energie effiziente Luftwärmepumpe, elektrische Rollläden und ebenerdigen Duschen, sowie Rollstuhlgerechte Wohneingänge vorfinden.
Lage
Ein Wohnerlebnis für jedermann! Spielplätze sowie Einkaufsmöglichkeiten sind fußläufig erreichbar. Idyllische Spaziergänge an der Ruhr und die Teilnahme am Stadtleben ist in dieser Wohngegend möglich. Wir laden Sie zu einem Besichtigungstermin ein und freuen uns Ihnen persönlich dieses Schmuckstück vorzustellen.
52441 linnich
Die Karte dient lediglich als Orientierungshilfe und stellt nicht die exakte Lage dar. Die vollständige Adresse erhalten Sie bei uns.
Objektdaten
Preise
Kaltmiete
850 €
Warmmiete
1.000 €
Nebenkosten
150 €
Informationen
Rollstuhlgerecht
Flächen
Wohnfläche
ca. 90 m²
Zimmer
3
min. teilbare Fläche
ca. 90 m²
Zustand und Bauart
Baujahr
2021
Kategorie
Gehoben
Zustand
Erstbezug
Lage/Gebiet
1B
Bauweise
Massiv
Räume, Flure und Etagen
Etagen
2
Ausstattung
Bad mit
Dusche, Wanne, Fenster
Küche
Offene Küche
Boden
Fliesen, Laminat
Fahrstuhl
Personen
Kabel/Sat-TV
Rolladen
Abstellraum
Stellplätze
Stellplatz
1
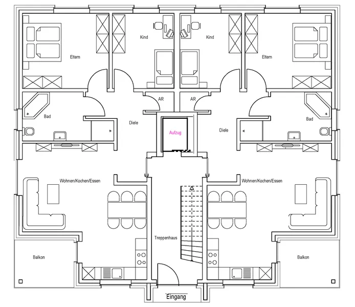
Grundrisse
Energieausweis
Energiedaten
Baujahr
2021
Energieausweistyp
Bedarf
Gültig bis
10.02.2030
Energieeffizienzklasse
A+
Befeuerungsart
Luft/Wasser-Wärmepumpe
Heizungsart
Fußbodenheizung
Energieeffizienz
A+
A
B
C
D
E
F
G
H
0
30
50
75
100
130
160
200
250
Endenergiebedarf
20,1 kWh/(m²a)