Tolle Neubau Erdgeschosswohnung

41199 Mönchengladbach

Objekt-Nr.:20049-3161

710 €

Kaltmiete

Beschreibung

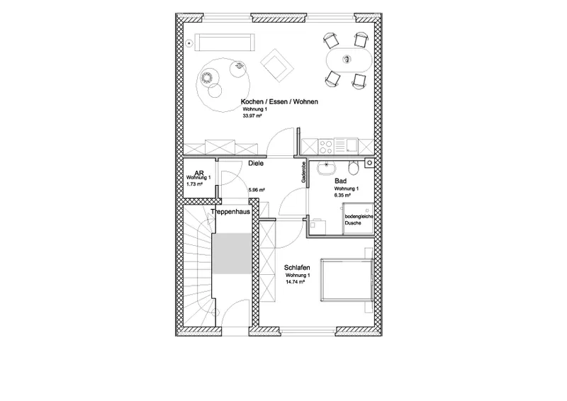
Diese in einem 4-Familienhaus gelegene Erdgeschosswohnung ist bereits für Sie bezugsfertig renoviert. Designböden aus Fliesen und Vinyl sowie moderne, weiss gestrichene Raufasertapeten vermitteln jetzt schon ein angenehmes und frisches Wohngefühl. Die 2 Zimmer Wohnung bietet mit ca. 63m² eine gute Raumaufteilung. Das Badezimmer hat genau wie die Wohn- Essküche oder das Schlafzimmer genügend Platz. Sogar Ihre Waschmaschine können Sie hier platzieren wenn Sie wollen. Neben einer ebenerdigen modernen Dusche gibt es auch noch Fußbodenheizung in der gesamten Wohnung, Dreifachverglasung in den Fenstern, elektr. Rolläden, EDV Verkabelung, einen Abstellraum sowie eine Terrasse mit Gartenanteil zur Alleinnutzung. Natürlich gibt es auch im Keller noch Waschmaschinen und Trockner Stellplätze. Darüberhinaus gehört auch ein Kellerabteil und der Fahrradraum zum Mietangebot.

Lage

Die Erdgeschosswohnung liegt im Ortsteil Geistenbeck von Mönchengladbach und besticht durch die ruhige und naturverbundene Randlage ebenso wie durch die sehr gute und schnelle Verkehrsanbindung. Außerdem erreichen Sie fußläufig mehrere Einkaufsmöglichkeiten. Schulen, Kindergärten und Ärzte befinden sich ebenfalls in der Nähe.

41199 Mönchengladbach

Die Karte dient lediglich als Orientierungshilfe und stellt nicht die exakte Lage dar. Die vollständige Adresse erhalten Sie bei uns.

Objektdaten

Preise

Kaltmiete

710 €

Warmmiete

890 €

Nebenkosten

180 €

Kaution

1.420 €

Mieterprovision

Provisionsfrei

Flächen

Wohnfläche

ca. 63 

Zimmer

2

min. teilbare Fläche

ca. 63 

Zustand und Bauart

Baujahr

2021

Kategorie

Gehoben

Zustand

Erstbezug

Lage/Gebiet

1A

Bauweise

Massiv

Räume, Flure und Etagen

Etagen

3

Schlafzimmer

1

Badezimmer

1

Ausstattung

Bad mit

Dusche

Küche

Offene Küche

Kabel/Sat-TV

Netzwerkverkabelung

Fahrradraum

Rolladen

Wasch/Trockenraum

Abstellraum

Grundrisse

Energieausweis

Energiedaten

Baujahr

2021

Energieausweistyp

Bedarf

Gültig bis

06.08.2027

Energieeffizienzklasse

A+

Befeuerungsart

Luft/Wasser-Wärmepumpe

Heizungsart

Fußbodenheizung

Energieeffizienz

A+

A

B

C

D

E

F

G

H

0

30

50

75

100

130

160

200

250

Endenergiebedarf

33,8 kWh/(m²a)