Repräsentative Gewerbeeinheit – zentrale Lage direkt am Bahnhof Troisdorf

53840 Troisdorf

Objekt-Nr.:66275-8396

Auf Anfrage

Kaltmiete

Beschreibung

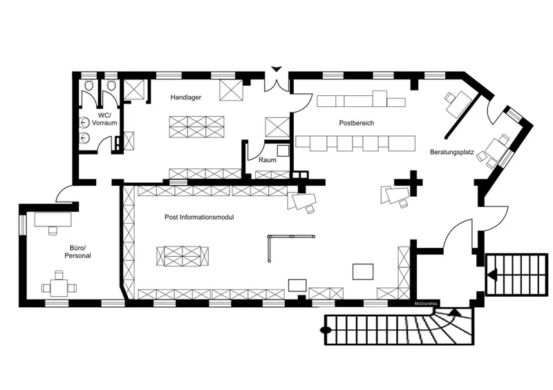
In zentraler Lage von Troisdorf, direkt am Bahnhof, befindet sich diese repräsentative und denkmalgeschützte Gewerbeeinheit aus dem Jahr 1928. Das stilvolle Gebäude vereint historischen Charme mit vielseitigen Nutzungsmöglichkeiten und bietet auf ca. 351 m² Fläche insgesamt neun großzügige Zimmer, die bei Bedarf flexibel an individuelle Anforderungen angepasst werden können. Im Rahmen eines geplanten Umbaus wird die Fassade zudem frisch gestrichen, was das äußere Erscheinungsbild zusätzlich aufwertet. Das Objekt verfügt über insgesamt fünf separate Zugänge: einen barrierefreien Haupteingang mit Rampe von der Straßenseite, je einen seitlichen Eingang auf der rechten und linken Gebäudeseite sowie zwei weitere Zugänge vom Innenhof. Bis zu sieben PKW-Stellplätze stehen auf der Rückseite des Gebäudes zur Anmietung bereit – ein echter Vorteil in dieser zentralen Lage. Die Beheizung erfolgt über eine Gaszentralheizung mit Heizkörpern, die Warmwasserversorgung kann wahlweise über Boiler oder Durchlauferhitzer erfolgen. Auch eine Klimatisierung der Räume ist bei Bedarf realisierbar. Diese außergewöhnliche Gewerbeeinheit überzeugt durch ihre Kombination aus klassischer Architektur und moderner Funktionalität und stellt eine ideale Basis für unterschiedlichste gewerbliche Nutzungskonzepte in bester Lage von Troisdorf dar.

Ausstattung

- Zentrale Lage direkt am Hauptbahnhof Troisdorf - Denkmalgeschütztes Gebäude mit historischem Charme (Baujahr 1928) - Ca. 351 m² Gewerbefläche mit 9 großzügigen Zimmern - Flexible Raumgestaltung nach Mieterwunsch möglich - Geplante Renovierung inklusive neuer Fassadengestaltung - Barrierefreier Haupteingang mit Rampe - Insgesamt 5 separate Zugänge (inkl. zwei vom Innenhof) - Bis zu 7 PKW-Stellplätze auf der Rückseite anmietbar - Gaszentralheizung mit Heizkörpern - Warmwasser über Speicher oder Durchlauferhitzer wählbar

Lage

Das Objekt befindet sich in zentraler Lage von Troisdorf und bietet eine hervorragende Verkehrsanbindung für Kunden, Mitarbeiter und Geschäftspartner. Der Bahnhof ist fußläufig erreichbar und ermöglicht eine schnelle ÖPNV-Verbindung nach Köln, Bonn und Siegburg. Darüber hinaus ist der Standort verkehrstechnisch sehr gut erschlossen: Hauptverkehrsstraßen wie die B8 und B56 sind in wenigen Minuten erreichbar und bieten direkten Anschluss an die Autobahnen A59 und A3. So ist auch der überregionale Straßenverkehr problemlos zugänglich. Insgesamt überzeugt der Standort durch seine zentrale Lage, sehr gute Erreichbarkeit und Sichtbarkeit – ideale Voraussetzungen für eine gewerbliche Nutzung.

53840 Troisdorf

Die Karte dient lediglich als Orientierungshilfe und stellt nicht die exakte Lage dar. Die vollständige Adresse erhalten Sie bei uns.

Objektdaten

Informationen

verfügbar ab

30.04.2026

Flächen

Zimmer

9

Gesamtfläche

ca. 351 

Bürofläche

ca. 351 

Zustand und Bauart

Baujahr

1928

Kategorie

Standard

Zustand

gepflegt

Unterkellert

Nein

Ausstattung

Boden

Fliesen

Gäste-WC

Sonstiges

Gewerbliche Nutzung möglich

Grundrisse

Energieausweis

Energiedaten

Energieausweistyp

Verbrauch

Gültig bis

2034-01-17

Wärmewert

191,9 kWh/(m²a)

Stromwert

8,3 kWh/(m²a)

Baujahr

1928

Wesentlicher Energieträger

ERDGAS_LEICHT

Heizungsart

Zentralheizung

Energieeffizienz

A+

A

B

C

D

E

F

G

H

0

30

50

75

100

130

160

200

250

Endenergieverbrauch

226 kWh/(m²a)