++ Provisionsfrei! Schönes EFH mit Garage in guter Lage von Geilenkirchen sucht neue Eigentümer! ++

52511 Geilenkirchen

Objekt-Nr.:20049-2850

219.000 €

Kaufpreis

Beschreibung

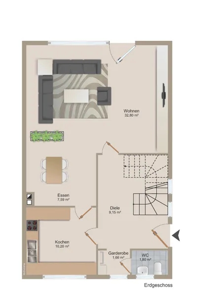
Dieses charmante Reiheneckhaus mit 124 m² Wohnfläche verteilt sich auf insgesamt 4 Zimmer und bietet Ihnen viel Raum und Ruhe für ein geselliges Familienleben in Geilenkirchen. Durch den einladenden Eingangsbereich gelangen Sie in den stillvollen 40 m² großen offenen Wohn,- Essbereich, der zum Beisammensein einlädt. Zum Kochen geht’s nebenan in die große Küche. Auf dieser Ebene befindet sich zusätzlich ein kleines Gäste-WC und Platz für eine Garderobe, angrenzend an dem Eingangsbereich. Über die Treppe in der Diele erreichen Sie das Obergeschoss, es verfügt über 3 große helle Schlafzimmer und ein Abstellraum. Hier ist viel Platz garantiert. Das Badezimmer mit Dusche und Badewanne komplettiert diese Etage. Der Kellerbereich ist vollunterkellert und beherbergt neben dem Heizungsraum, eine praktische Waschküche. Ein weiteres Highlight: das große beheizbare Schlafzimmer mit Tageslichtfenster. Von hieraus erreichen Sie durch eine Außentreppe die Terrasse und den nicht zu großen und pflegeleichten Garten. Eine Garage neben dem Haus steht für Ihr PKW zur Verfügung und ist im Preis enthalten. Mit nur wenig handwerklichem Geschick zaubern Sie sich und Ihrer Familie ein perfektes Heim. Hier sind Ihren Gestaltungsmöglichkeiten keine Grenzen gesetzt!

Lage

Diese Immobilie befindet sich in einer ruhigen Seitenstraße, umgeben von hübschen Häuschen der heranwachsenden Stadt Geilenkirchen. Hier wird gute Nachbarschaft gepflegt. Die Stadt Geilenkirchen hat ca. 28.000 Einwohner und liegt im Süden des Kreises Heinsberg an der Bahnstrecke Aachen/Mönchengladbach bzw. Düsseldorf. Neben vorzüglichen Einkaufsmöglichkeiten, die in direkter Nähe Fußläufig erreichbar sind, befinden sich in der Stadt alle Schulformen und alle sozialen Einrichtungen. Auch für die Freizeitgestaltung ist sowohl für Jugendliche, als auch für Erwachsene im Stadtgebiet bestens gesorgt. Geilenkirchen unterliegt einer guten Infrastruktur. Sowohl über die öffentlichen Verkehrsmittel, als auch über das Straßennetz sind Städte wie Heinsberg, Düsseldorf und Aachen schnell erreichbar. Die Autobahnauffahrt zur A46 ist 6 Km und ca. 8 Fahrminuten von Ihrer neuen Immobilie entfernt.

52511 Geilenkirchen

Die Karte dient lediglich als Orientierungshilfe und stellt nicht die exakte Lage dar. Die vollständige Adresse erhalten Sie bei uns.

Objektdaten

Preise

Kaufpreis

219.000 €

Informationen

verfügbar ab

nach Vereinbarung

Flächen

Wohnfläche

ca. 127 

Zimmer

4

Grundstücksfläche

ca. 319 

Zustand und Bauart

Baujahr

1974

Zustand

gepflegt

Unterkellert

Ja

Räume, Flure und Etagen

Etagen

2

Schlafzimmer

3

Ausstattung

Rolladen

Gäste-WC

Wasch/Trockenraum

Abstellraum

Stellplätze

Freiplatz

1

Garage

1

Grundrisse

Energieausweis

Energiedaten

Energieausweistyp

Bedarf

Gültig bis

30.01.2030

Energieeffizienzklasse

D

Baujahr

1989

Befeuerungsart

Öl

Heizungsart

Zentralheizung

Energieeffizienz

A+

A

B

C

D

E

F

G

H

0

30

50

75

100

130

160

200

250

Endenergiebedarf

107,23 kWh/(m²a)