Beschreibung
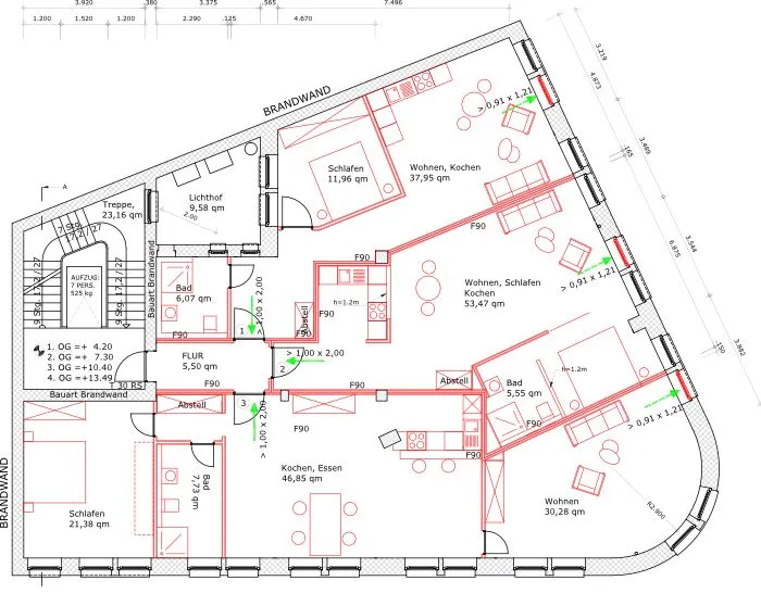
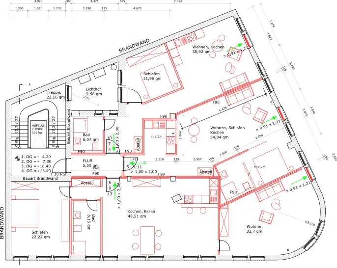
Büro 1. OG:ca.220,00 m² Nutzfläche Büro 2. OG:ca.230,00 m² Nutzfläche Büro 3. OG:ca.230,00 m² Nutzfläche Büro 4. OG:ca.230,00 m² Nutzfläche Gesamt ca.910,00 m² Nutzfläche Diverse Aufteilung 3 Büroräume, Glaseingang, Besprechung, D+H WC mit Dusche, Server-/Kopierraum, Teeküchenanschluss, Aufzug.
Ausstattung
Fliesenfußboden, Cat-Verkabelung, Kuststofffenster mit Isolierverglasung, CAT-Verkabelung, Kassettendecke mit Beleuchtung, elektrische Außenverschattung, Brandmeldeanlage. Aufteilung und Ausstattung nach Wunsch des Mieters möglich. Miete: EUR 10,80/m², zzgl. EUR 2,50/m² Nebenkosten und MwSt. monatlich. Frei: ab sofort
Lage
Die Immobilie befindet sich mitten an der Haupteinkaufsstraße Ostenhellweg. Bekannte Größen wie C und A, TK Maxx, Strauss Inovation und viele andere sind ebenfalls hier ansässig. ÖPNV U-Bahnhaltestelle Reinoldikirche mit den Linien U42, U43, U44, U46 in unmittelbarer Nähe.
44135 Dortmund–Dortmund-Innenstadt
Die Karte dient lediglich als Orientierungshilfe und stellt nicht die exakte Lage dar. Die vollständige Adresse erhalten Sie bei uns.
Objektdaten
Preise
Kaltmiete
9.828 €
Nebenkosten
2.275 €
Informationen
verfügbar ab
sofort
Flächen
Zimmer
16
Nutzfläche
ca. 910 m²
Gesamtfläche
ca. 910 m²
Bürofläche
ca. 910 m²
min. teilbare Fläche
ca. 220 m²
Zustand und Bauart
Kategorie
Gehoben
Zustand
gepflegt
Räume, Flure und Etagen
Etagen
4
Ausstattung
Boden
Fliesen
Fahrstuhl
Personen
Netzwerkverkabelung
Stellplätze
Freiplatz
1
Garage
1
Grundrisse
Energieausweis
Energiedaten
Energieausweistyp
Verbrauch
Gültig bis
02.06.2025
Wärmewert
122,4 kWh/(m²a)
Stromwert
130,8 kWh/(m²a)
Baujahr
1953
Energieeffizienz
A+
A
B
C
D
E
F
G
H
0
30
50
75
100
130
160
200
250
Endenergieverbrauch
122,4 kWh/(m²a)