Beschreibung
Gesundes Wohnerlebnis mit Panoramablick. Auf diese Eigenschaften sind wir bei diesem Angebot besonders stolz. Das Einfamilienhaus gibt Ihnen auf dem ca. 510 m² großen Grundstück die Möglichkeit, sich in den Wohnräumen der ökologischer Holzbauweise heimisch zu fühlen. Das einzigartige Original wurde in massiver Holzbauweise als KfW55 Standard errichtet und erhält somit ein angenehmes Raumgefühl, gesundes Wohnklima und stattliche Förderung für Ihre Familie.Auf ca. 206 m² Wohnfläche, zwei Etagen sowie ausgebautem Dachgeschoss, haben die Bauherren viel Platz zum Wohnen und Leben geschaffen. Zwei großflächige Glaselemente im Wohnbereich sorgen für ausreichend Helligkeit und einen schönen Ausblick auf Terrasse, Garten und Landschaft. Im Sommer laden die großzügige Terrasse, der Balkon für die Kinder im Obergeschoss sowie die Dachterrasse im 2. Obergeschoss mit unsagbar schönem Blick über die Wiesen und zur Nideggener Burg zum Verweilen ein.Verteilt über das Erdgeschoss, dem 1. Obergeschoss sowie dem ausgebauten Dachgeschoss stehen Ihnen neben einem Schlafzimmer mit eigenem Bad en Suite, zwei Kinderzimmern, die den Blick in den eigenen Garten mit separatem Balkon zulassen, einem weiteren Bad im 1. Obergeschoss, auch diverse Extras, wie zum Beispiel ein separates Badezimmer und ein Wohnbereich im Dachgeschoss mit traumhafter Dachterrasse zur Verfügung. Im Erdgeschoss, dem Herzstück des Wohngeschehens, entstand ein offen gestaltetes Ensemble aus Küche, Ess- und Wohnbereich. Es stellt den Mittelpunkt des Wohngeschehens dar und ist ein bevorzugter Treffpunkt für das familiäre Zusammenleben.
Sonstiges
Dieses ökologische Einfamilienhaus erreicht den KFW 55 Standard.Ein staatliches Förderprogramm ermöglicht Ihnen eine attraktive Finanzierung zu niedrigen Zinsen sowie zusätzlichen Tilgungszuschüssen von bis zu 18.000,00 EUR.Sie suchen eine neue Immobilie und wollen gleichzeitig Ihre Immobilie verkaufen?Immofly OHG bietet Ihnen umfangreiche Verkaufsmöglichkeiten für Ihre Immobilie!Durch die Zusammenarbeit mit der Westdeutschen Immobilienbörse entstehen Ihnen zahlreiche Vorteile, z. B.: - über 10.000 aktuelle Kaufinteressenten in der Datenbank- kostenlose und unverbindliche Marktwerteinschätzung Ihrer Immobilie- über 10 Jahre Erfahrung beim Verkauf von Immobilien- überregionale Zusammenarbeit mit unserem Netzwerk an 84 Standorten- gleichzeitig regionale Präsenz mit allen notwenigen Marktkenntnissen
Lage
Lage, Lage, Lage: Nicht nur Monopoly-Spieler wissen, dass diese als eine der wichtigsten Regeln in der Immobilienwelt gilt. Viele Grün- und Freiflächen, die Nähe zur Nideggener Innenstadt, sehr gute Anbindungen an das Busnetz das sind nur ein paar der Argumente, die für den Standort in Brück sprechen. Wer die Natur liebt, gerne von der Haustüre weg ins Grüne joggt, spazieren oder Rad fahren geht, der wird diesen Ausgangspunkt lieben. Stadt nah und schick oder naturnah und ruhig? Wer künftig im Höhenweg, mit Blick auf das Schloss Nideggen zu Hause ist, der muss diese Entscheidung nicht treffen. Fazit: Das Suchen der richtigen Lage, das haben wir für Sie schon erledigt.
52385 Nideggen
Die Karte dient lediglich als Orientierungshilfe und stellt nicht die exakte Lage dar. Die vollständige Adresse erhalten Sie bei uns.
Objektdaten
Preise
Kaufpreis
449.000 €
Informationen
verfügbar ab
sofort
Flächen
Zimmer
6
Zustand und Bauart
Baujahr
2020
Kategorie
Gehoben
Zustand
Erstbezug
Ausstattung
Gäste-WC
Abstellraum
Stellplätze
Stellplatz
2
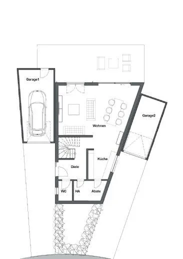
Grundrisse
Energieausweis
Energiedaten
Energieausweistyp
Bedarf
Gültig bis
16.01.2030
Energieeffizienzklasse
A+
Baujahr
2013
Heizungsart
Fußbodenheizung
Energieeffizienz
A+
A
B
C
D
E
F
G
H
0
30
50
75
100
130
160
200
250
Endenergiebedarf
19,98 kWh/(m²a)