Beschreibung
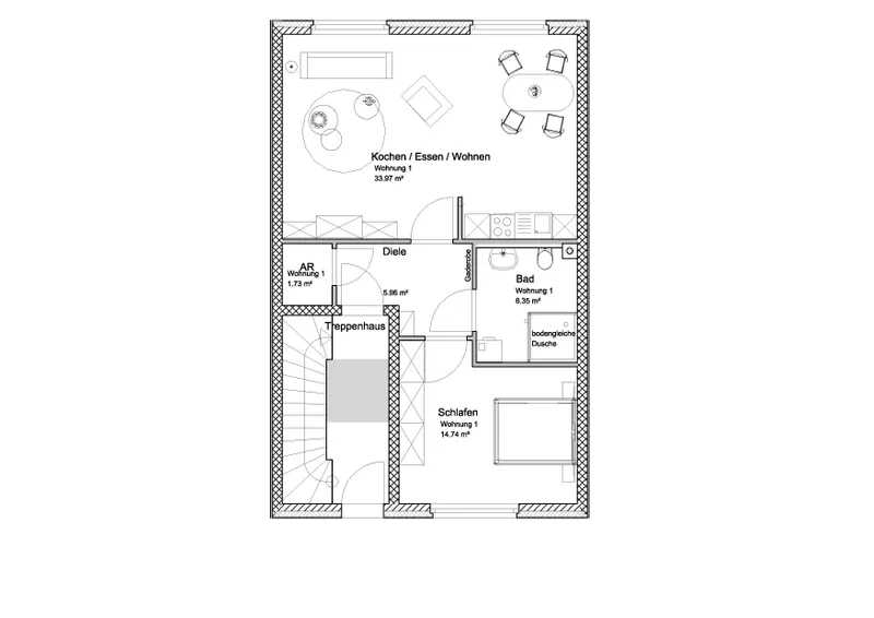
Diese in einem 4-Familienhaus gelegene Etagenwohnung ist bereits für Sie bezugsfertig renoviert. Designböden aus Fliesen und Vinyl sowie moderne, weiss gestrichene Raufasertapeten vermitteln jetzt schon ein angenehmes und frisches Wohngefühl. Die 2 Zimmer Wohnung bietet mit ca. 63m² eine gute Raumaufteilung. Das Badezimmer hat genau wie die Wohn- Essküche oder das Schlafzimmer genügend Platz. Sogar Ihre Waschmaschine können Sie hier platzieren wenn Sie wollen. Neben einer ebenerdigen modernen Dusche gibt es auch noch Fußbodenheizung in der gesamten Wohnung, Dreifachverglasung in den Fenstern, elektr. Rolläden, EDV Verkabelung, einen Abstellraum und Balkon. Natürlich gibt es auch im Keller noch Waschmaschinen und Trockner Stellplätze. Darüberhinaus gehört auch ein Kellerabteil und der Fahrradraum zum Mietangebot.
Lage
Die Etagenwohnung liegt im Ortsteil Geistenbeck von Mönchengladbach und besticht durch die ruhige und naturverbundene Randlage ebenso wie durch die sehr gute und schnelle Verkehrsanbindung. Außerdem erreichen Sie fußläufig mehrere Einkaufsmöglichkeiten. Schulen, Kindergärten und Ärzte befinden sich ebenfalls in der Nähe.
41199 Mönchengladbach
Die Karte dient lediglich als Orientierungshilfe und stellt nicht die exakte Lage dar. Die vollständige Adresse erhalten Sie bei uns.
Objektdaten
Preise
Kaltmiete
660 €
Warmmiete
840 €
Nebenkosten
180 €
Kaution
1.320 €
Mieterprovision
Provisionsfrei
Flächen
Wohnfläche
ca. 63 m²
Zimmer
2
min. teilbare Fläche
ca. 63 m²
Zustand und Bauart
Baujahr
2021
Kategorie
Gehoben
Zustand
Erstbezug
Lage/Gebiet
1A
Bauweise
Massiv
Räume, Flure und Etagen
Etage
2
Etagen
3
Schlafzimmer
1
Badezimmer
1
Ausstattung
Bad mit
Dusche
Küche
Offene Küche
Kabel/Sat-TV
Netzwerkverkabelung
Fahrradraum
Rolladen
Wasch/Trockenraum
Abstellraum
Grundrisse
Energieausweis
Energiedaten
Baujahr
2021
Energieausweistyp
Bedarf
Gültig bis
06.08.2027
Energieeffizienzklasse
A+
Befeuerungsart
Luft/Wasser-Wärmepumpe
Heizungsart
Fußbodenheizung
Energieeffizienz
A+
A
B
C
D
E
F
G
H
0
30
50
75
100
130
160
200
250
Endenergiebedarf
33,8 kWh/(m²a)