Beschreibung
Während der Aufbereitung wurden wir nicht nur einmal von der Vielfältigkeit dieser Immobilie überrascht. Die Nähe zu dem beliebten Erholungssee Lago Laprello macht das Angebot perfekt. Das Haupthaus, mit seinen 126m² Wohnfläche, erstreckt sich auf 3 Ebenen. Im Erdgeschoss das helle Wohn- und Esszimmer mit Anschluss zu der Küche und Terrasse. Der Garten ist wunderschön und grün angelegt. Ihre Freunde werden Sie im Sommer liebend gerne zum Grillen besuchen. Für diese Anlässe ist hier alles eingerichtet. Das komplette Obergeschoss steht den Hausherren ganz allein zur Verfügung. Hier finden Sie neben einem modernen Bad, Abstellraum und 3 geräumigen Schlafräumen ein kuscheliges, helles Büro. Im Untergeschoss befindet sich eine Sauna mit Dusche, welche sehr gern genutzt wird und das angrenzende Erholungs-/Hobbyraum. Die Einliegerwohnung mit separatem Eingang wird Sie überraschen und verspricht mehr als die angegebene Wohnfläche von 71m². Im Erdgeschoss das helle Wohnzimmer mit angrenzender Küche und Ausgang zum Balkon, Terrasse und Gartenanteil. Das Kellergeschoss darf man in diesem Fall nicht so nennen. Die 3 Zimmer mit Bad sind allesamt mit Tageslichtfenstern ausgestattet und bieten die gleiche Belichtung wie auch auf der Etage darüber. Ihre Mieter oder Familienangehörige werden diese Ebene lieben. Ausnahmslos alle Räume sind modern, hochwertig und geschmackvoll im Jahr 2005 geplant und im Jahr 2006 realisiert worden. Neben 2 Garagen stehen auch 2 bequeme Stellplätze für Ihre Fahrzeuge bereit.
Lage
Ruhig und gemütlich ist es hier. Besonders Familien mit Kindern werden in Heinsberg kaum ein schöneres Plätzchen finden. Fußläufig sind Sie in wenigen Minuten am Lago Laprello mit all seinen Vorzügen was dieser Erholungsgebiet mit sich bringt. Zum Heinsberger City ist es von hieraus bekanntlich nicht weit
52525 Heinsberg
Die Karte dient lediglich als Orientierungshilfe und stellt nicht die exakte Lage dar. Die vollständige Adresse erhalten Sie bei uns.
Objektdaten
Preise
Kaufpreis
595.000 €
Informationen
verfügbar ab
Nach Vereinbarung
Flächen
Wohnfläche
ca. 197 m²
Zimmer
8
Grundstücksfläche
ca. 555 m²
min. teilbare Fläche
ca. 197 m²
Zustand und Bauart
Baujahr
2006
Kategorie
Standard
Zustand
neuwertig
Lage/Gebiet
1A
Unterkellert
Ja
Räume, Flure und Etagen
Schlafzimmer
6
Badezimmer
2
Wohneinheiten
2
Balkone
1
Terrassen
1
Ausstattung
Bad mit
Dusche, Wanne, Fenster
Rolladen
Gäste-WC
Abstellraum
Stellplätze
Stellplatz
2
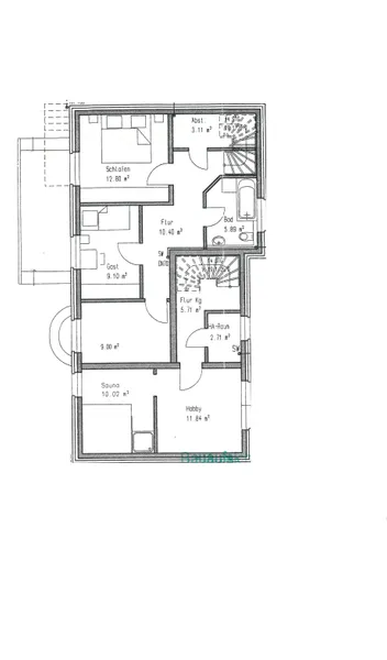
Grundrisse
Energieausweis
Energiedaten
Energieausweistyp
Verbrauch
Gültig bis
06.05.2032
Mit Warmwasser
Energieeffizienzklasse
D
Baujahr
2006
Befeuerungsart
Gas
Heizungsart
Fußbodenheizung
Energieeffizienz
A+
A
B
C
D
E
F
G
H
0
30
50
75
100
130
160
200
250
Endenergieverbrauch
123 kWh/(m²a)