Moderne Erdgeschoss-Wohnung in Köln-Mülheim

51063 Köln

Objekt-Nr.:66272-DMI42_1

199.000 €

Kaufpreis

Beschreibung

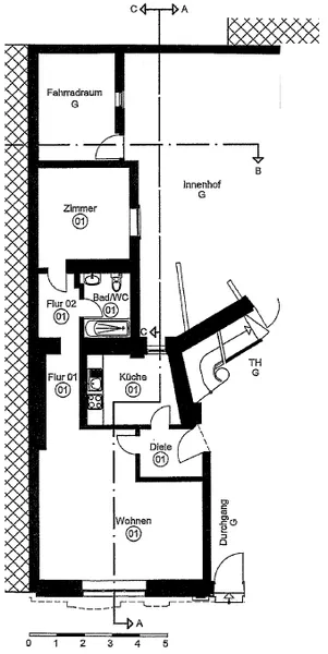
Die angebotene Eigentumswohnung befindet sich im Erdgeschoss eines denkmalgeschützten Mehrparteienhauses. Die Wohnfläche von 63,82 m² verteilt sich wie folgt: *Wohnzimmer (28,33 m²), *Schlafzimmer (11,75 m²), *Küche (8,28 m²), *Bad (4,11 m²), *Diele (4,02 m²), *Flur 1 (3,83 m²), *Flur 2 (3,51 m²). Der Wohnbereich ist groß genug, um hier gleichzeitig das Esszimmer zu integrieren. Das Schlafzimmer ist zur rückwärtigen und somit ruhigeren Gebäudeseite ausgerichtet. Die Wohnung ist aktuell vermietet. Ihrer neuen Eigentumswohnung sind folgende Sondernutzungsrechte zugeordnet: *Kellerraum Die Miteigentumsanteile belaufen sich auf 66,60 von 1.000. Die Wohnung verfügt über eine eigene, moderne Gastherme. Die Instandhaltungsrücklage der Eigentümergemeinschaft betrug zum 31.12.2023: 10.420,77 €. Der Anteil dieser Wohnung an der Gesamt-Instandhaltungsrücklage des Gebäudes beträgt 694,02 € (Stand 31.12.2023). Das monatliche Hausgeld für das Wirtschaftsjahr 2024 betrug 289,87 €. Hiervon können rd. 183 € auf einen etwaigen Mieter umgelegt werden. Die übrigen, nicht-umlagefähigen rd. 107 € setzen sich zusammen aus Verwaltergebühr (rd. 29 €), Reparaturen & Bankgebühren (rd. 23 €) und Zuführung in die Instandhaltungsrücklage (rd. 55 €). Hinweis: Für denkmalgeschützte Gebäude können unter bestimmten Voraussetzungen gemäß § 7i EStG steuerliche Abschreibungsmöglichkeiten bestehen. Bitte lassen Sie sich hierzu individuell von Ihrem Steuerberater beraten.

Ausstattung

Die Wohnung ist seit dem 15.12.2012 vermietet. Da es sich um den Erstverkauf nach Umwandlung zu Wohnungseigentum handelt, greift hier die sogenannte Kündigungssperrfrist. Diese besagt, dass eine Eigenbedarfskündigung erst nach Ablauf von 8 Jahren nach Umschreibung im Grundbuch unter Einhaltung der gesetzlichen Fristen erfolgen darf. Für die Richtigkeit der Angaben können wir keine Gewähr übernehmen. Überzeugen Sie sich selbst: + Eigene, neuwertige Gastherme – Gasanbieter kann selber ausgewählt werden + Kellerraum + Auch weitere Wohnungen im Gebäude können erworben werden + Denkmalschutz + Solide vermietet + potenzielle steuerliche Vorteile nach § 7i EStG bei anerkannten Sanierungskosten - vorbehaltlich steuerlicher Prüfung durch den Berater - Kein zugeordneter PKW-Stellplatz. Kostenlose Parkmöglichkeiten in der direkten Nähe - Kein Balkon - 8 Jahre Kündigungssperrfrist - Wohnung kann nicht kurzfristig aus Eigenbedarf genutzt werden

Lage

Dieses denkmalgeschützte Gebäude befindet sich im lebendigen und zugleich aufstrebenden Stadtteil Mülheim. Der Standort besticht durch eine perfekte Mischung aus urbanem Flair und entspannter Wohnatmosphäre. Zahlreiche Einkaufsmöglichkeiten, Cafés und Restaurants sind bequem zu Fuß erreichbar, wodurch das Viertel besonders attraktiv wird. Mülheim ist bekannt für seine lebendige Kunst- und Kulturszene, was es zu einem idealen Umfeld für Kulturliebhaber macht. Die Anbindung an den öffentlichen Nahverkehr ist hervorragend, mit mehreren Bus- und Bahnlinien in unmittelbarer Nähe, die schnelle Verbindungen in alle Stadtteile bieten. Pendler profitieren zudem von der Nähe zu den Autobahnen. Für Naturfreunde bietet die Nähe zum Rhein sowie zu Parks und Grünflächen viele Möglichkeiten zur Erholung und Freizeitgestaltung. Die optimale Lage des Gebäudes verbindet die Vorzüge des urbanen Lebens mit einer hohen Lebensqualität und vielfältigen Freizeitangeboten.

51063 Köln

Die Karte dient lediglich als Orientierungshilfe und stellt nicht die exakte Lage dar. Die vollständige Adresse erhalten Sie bei uns.

Objektdaten

Preise

Kaufpreis

199.000 €

Hausgeld

289,87 €

Käuferprovision

3,57% inkl. MwSt. vom beurkundeten Kaufpreis

Informationen

Vermietet

Flächen

Wohnfläche

ca. 63,82 

Zimmer

2

Zustand und Bauart

Baujahr

1902

Bauweise

Massiv

Unterkellert

Ja

Räume, Flure und Etagen

Badezimmer

1

Ausstattung

Kabel/Sat-TV

Grundrisse

Energieausweis

Energiedaten

Baujahr

1902

Befeuerungsart

Gas

Heizungsart

Etagenheizung

Energieausweis

laut Gesetz nicht erforderlich