Beschreibung
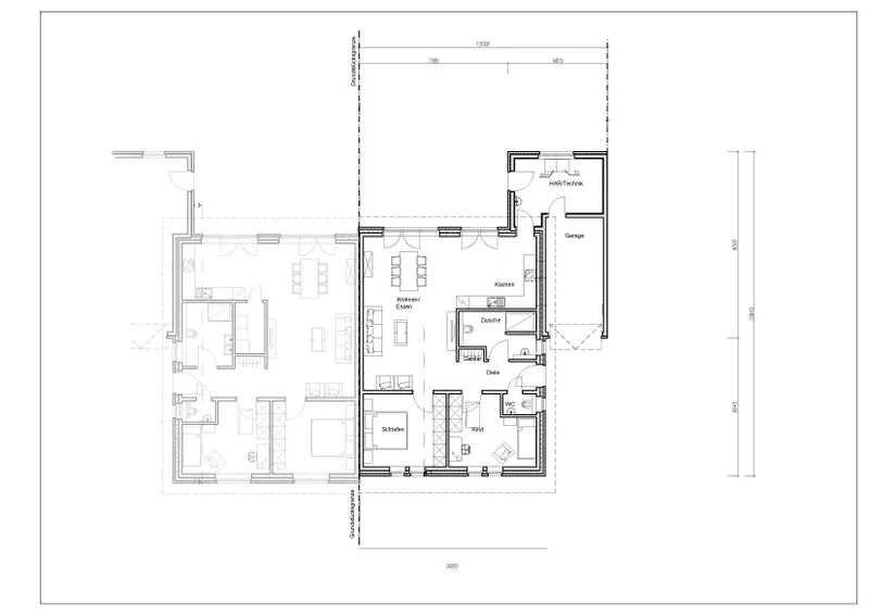
In gepflegter Nachbarschaft und grüner Umgebung soll in Zukunft diese traumhafte Doppelhaushälfte auf einem 614 Quadratmeter großen Grundstück entstehen. Mit rund 90 Quadratmetern Wohnfläche bietet der Bungalow genügend Platz für Ihre kleine Familie. Der Grundriss besteht aus einer Diele, einem Wohn- und Esszimmer mit offener Küche mit direktem Zugang zum Abstellraum, zwei Schlafzimmern und einem Badezimmer als auch einem Gäste-WC. Der in diesem projektierten Bungalow gezeigte Grundriss lässt sich auch problemlos Ihren Wünschen entsprechend anpassen um Ihr eigenes Individuelles Zuhause für Sie zu verwirklichen.
Ausstattung
In allen Haus of Rock Häusern ist eine hochwertige Ausstattung bereits inklusive. So finden Sie elektrisch betriebene Rollladen, Dreifachverglasung, hochwertige Badausstattung, uvm. in diesem Angebot vor. Eine in Massivbauweise errichtete Garage inkl. elektrisch betriebenem Sektionaltor ist ebenfalls im Preis enthalten. Als Fassadengestaltung haben Sie hier die Wahl zwischen Klinkerfassade oder der einzigartigen Kombination aus Putzfassade und Dekorplatten als Fassadenverkleidung. So machen Sie Ihr Haus zum Hingucker. Die Luftwasser-Wärmepumpe in Verbindung mit Fußbodenheizung in allen Wohnräumen ist mit Thermostatventilen zur individuellen Regelung der Raumtemperatur ausgestattet. Ihr Haus of Rock wird individuell geplant und in Massivbauweise errichtet. Baunebenkosten wie Hausanschlüsse, Außenanlage, Malerarbeiten sowie Fußbodenbeläge sind nicht im Kaufpreis enthalten. Gerne erstellen wir Ihnen detaillierte Gesamtkosten.
Lage
Das Unikat wird in Waldfeucht Obspringen für Sie errichtet. Direkt an der Grenze zu den Niederlanden gelegen, gehört Obspringen zum nordrhein-westfälischen Kreis Heinsberg. Leben Sie in einer ruhigen, ländlichen Umgebung oder lassen Sie Ihre Kinder abseits vom Großstadtleben auswachsen. Felder, Wiesen und Wälder im Umland lassen ausgedehnte Wanderungen zu. Der neu errichtete Supermarkt in Waldfeucht-Haaren ist in weniger als 5 Minuten zu erreichen und bietet alles für den schnellen Einkauf zwischendurch. Ansonsten sind in unter 15 Minuten Fahrtzeit alle möglichen Belange wie Schulen, Ärzte, Schwimmbäder, Einzelhandel usw. gut zu erreichen. Die A46 ist durch die neue Umgehungsstraße von Waldfeucht-Haaren in Richtung Heinsberg sehr bequem und in ca. 15 Minuten zu erreichen. Ebenfalls günstig gelegen ist auf Niederländischer Seite die A2/E25/A73.
52525 Waldfeucht–Obspringen
Die Karte dient lediglich als Orientierungshilfe und stellt nicht die exakte Lage dar. Die vollständige Adresse erhalten Sie bei uns.
Objektdaten
Preise
Kaufpreis
255.000 €
Informationen
verfügbar ab
nach Vereinbarung
Barrierefrei
Flächen
Wohnfläche
ca. 90 m²
Zimmer
3
Grundstücksfläche
ca. 614 m²
Zustand und Bauart
Baujahr
2019
Kategorie
Gehoben
Zustand
projektiert
Ausstattung
Rolladen
Gäste-WC
Wasch/Trockenraum
Stellplätze
Garage
1
Grundrisse
Energieausweis
Baujahr
2019
Heizungsart
Fußbodenheizung
Energieausweis
laut Gesetz nicht erforderlich