Kaufen, einziehen, genießen

42781 Haan

Objekt-Nr.:20049-3073

349.000 €

Kaufpreis

Beschreibung

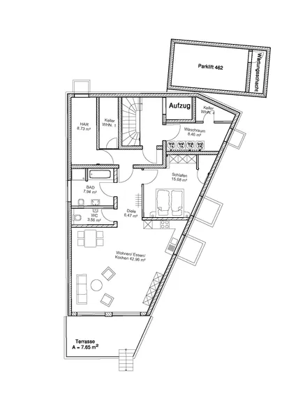
Bei diesem Prachtstück handelt es sich um ein 4 Familienhaus in einer wundervollen Sonnenlage. Falls Sie neue Lebens(t)räume schaffen wollen, sind Sie hier genau richtig. Geboten wird Ihnen eine 2-Zimmerwohnung im Souterrain-Bereich, welche mit vielen besonderen Highlights ausgestattet ist. Das planvoll gestaltete Raumkonzept bietet Ihnen viele Vorteile. Durch die großen Fenster, die das Wohnzimmer bestücken, wird Ihr Wohnbereich mit viel Licht durchflutet. Gleichzeitig führen diese raus auf die teils überdachte Terasse und dem direkt angrenzenden Garten. Dieses Objekt bietet Ihnen außerdem eine offene Küche, ein modernes Bad mit Wanne und Dusche und zusätzlich ein Gäste WC und einem Schlafzimmer. Zu Ihrer Wohnung gehört auch ein Kellerraum und ein Parkplatz- Parkplatzsuche ade!!!

Ausstattung

-Luftwärmepumpe -Fußbodenheizung -elektrische Rollläden -3-fach Verglasung -Aufzug

Lage

Hier erleben Sie den Charme der kleinen Gartenstadt Haan. Haan ist klein, beschaulich mit einer lückenlosen Infrastruktur, einer gemütlichen Fußgängerzone und reichhaltigen Kulturangeboten. Mit diesen Eigenschaften hat Haan seinen dörflichen Charakter erhalten, aber nicht nur das macht Haan aus. Denn auch die Nähe zu Düsseldorf und die optimale Verkehrsanbindung an das Autobahnkreuz Hilden (A 3 Köln – Ruhrgebiet, A 46 Wuppertal – Düsseldorf) machen diese Lage sehr begehrt. Dadurch, dass die Stadt von einem besonders ausgedehnten Grüngürtel umgeben ist, bieten sich Ausflüge und Spaziergänge geradezu an.

42781 Haan

Die Karte dient lediglich als Orientierungshilfe und stellt nicht die exakte Lage dar. Die vollständige Adresse erhalten Sie bei uns.

Objektdaten

Preise

Kaufpreis

349.000 €

Informationen

verfügbar ab

Nach Vereinbarung

Barrierefrei

Flächen

Wohnfläche

ca. 82 

Zimmer

2

Gesamtfläche

ca. 82 

Grundstücksfläche

ca. 547 

min. teilbare Fläche

ca. 82 

Zustand und Bauart

Baujahr

2020

Zustand

Erstbezug

Lage/Gebiet

Wohngebiet

Dachform

Satteldach

Unterkellert

teilweise

Ausrichtung Balkon/Terrasse

Süden

Erschließung

voll erschlossen

Räume, Flure und Etagen

Etagen

3

Ausstattung

Bad mit

Dusche, Wanne, Fenster

Küche

Offene Küche

Fahrstuhl

Personen

Fahrradraum

Rolladen

Gäste-WC

Wasch/Trockenraum

Gartennutzung

Grundrisse

Energieausweis

Energiedaten

Energieausweistyp

Bedarf

Gültig bis

20.06.2028

Energieeffizienzklasse

A+

Baujahr

2018

Energieeffizienz

A+

A

B

C

D

E

F

G

H

0

30

50

75

100

130

160

200

250

Endenergiebedarf

12,7 kWh/(m²a)