Gewerbefläche zentral in Geilenkirchen zu vermieten. Hier werden Sie garantiert gesehen!

52511 Geilenkirchen

Objekt-Nr.:20049-3130

1.590 €

Kaltmiete

Beschreibung

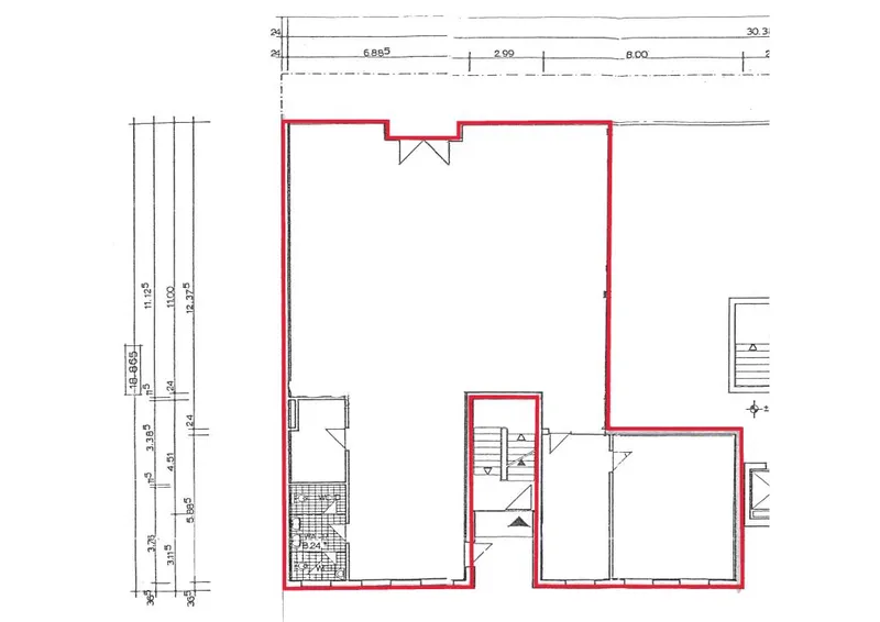
Ihr neuer Geschäftsstandort befindet sich unmittelbar gegenüber vom Bahnhof in Geilenkirchen. Das mehrstöckige Wohn,- und Geschäftsgebäude besteht aus mehreren Gewerbeeinheiten im Erdgeschoss und Wohnungen in den darüber liegenden Etagen. Hier werden Sie sofort vom Bahnhof oder der stark frequentierten Straße gesehen. Die große Glasfront bietet viel Platz und Ideen für Ihre Werbung. In Ihrer unmittelbaren Umgebung befinden sich viele interessanten Frequenzgeber. Ihre Räume verfügen über 227 m² im Erdgeschoss. Hier sind Ihren Ideen keine Grenzen gesetzt. Die Fläche lässt sich auch in 2 Teileinheiten aufteilen. Möchten Sie ein Restaurant, Café, Bäckerei, Metzgerei, Büro oder auch Ihre individuellen Ideen realisieren, würden wir gerne mit Ihnen Ihr individuelles Angebot erarbeiten. Bei der Lage, den Räumlichkeiten und Möglichkeiten ist jeder investierte Euro es Wert. Öffentliche Stellplätze sind vor und um das Haus verfügbar und können von Ihnen und Ihren Kunden benutzt werden. Sollten Sie mehr Info benötigen, sprechen Sie uns gerne an.

Lage

Ihr neuer Geschäftsstandort befindet sich zentral in Geilenkirchen gegenüber vom Bahnhof. Von hier aus fahren praktische Bahnanschlüsse mit direkter Verbindung nach Aachen und Mönchengladbach. Die Autobahn A46 erreichen Sie ebenfalls innerhalb weniger Minuten. Diese ermöglicht Ihnen und Ihren Kunden eine direkte Verbindungen nach Mönchengladbach, Düsseldorf und Aachen.

52511 Geilenkirchen

Die Karte dient lediglich als Orientierungshilfe und stellt nicht die exakte Lage dar. Die vollständige Adresse erhalten Sie bei uns.

Objektdaten

Preise

Kaltmiete

1.590 €

Warmmiete

1.815 €

Nebenkosten

225 €

Kaution

3.180 €

Informationen

verfügbar ab

Nach Vereinbarung

Flächen

Zimmer

4

Nutzfläche

ca. 227 

Ladenfläche

ca. 227 

Bürofläche

ca. 227 

Büroteilfläche

ca. 227 

min. teilbare Fläche

ca. 227 

Zustand und Bauart

Baujahr

1980

Kategorie

Standard

Zustand

gepflegt

Räume, Flure und Etagen

Etagen

1

Ausstattung

Boden

Teppich

Abstellraum

Grundrisse

Energieausweis

Baujahr

1980