Geräumiges Reiheneckhaus für Familien & vielseitigem Potenzial

41748 Viersen

Objekt-Nr.:20049-3444

199.000 €

Kaufpreis

Beschreibung

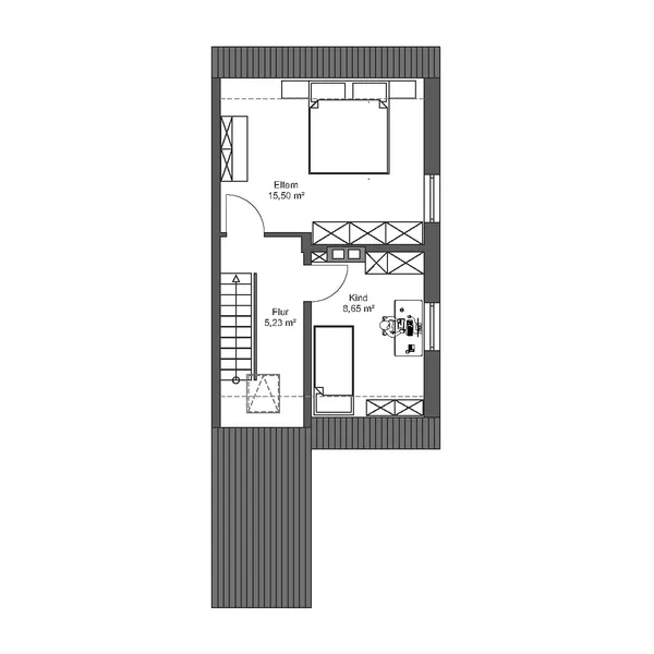
Dieses Reiheneckhaus, aus dem Jahr 1927, vereint Charme mit Komfort und bietet Ihnen auf einer Grundstücksfläche von 213 m² und einer Wohnfläche von ca. 69 m² genügend Platz und zahlreiche Nutzungsmöglichkeiten. Beim Betreten des Hauses werden Sie sofort von der gemütlichen Atmosphäre und der gelungenen Raumaufteilung begeistert sein. Die neuwertige Eingangstüre wirkt modern und einladend. Das Erdgeschoss umfasst ein modernisiertes Badezimmer mit einer barrierefreien Dusche, eine einladende Küche und ein geräumiges Wohnzimmer, das ideal für entspannte Abende mit der Familie oder Freunden ist. Im Obergeschoss befinden sich ein komfortables Schlafzimmer sowie ein weiteres Zimmer, das als Kinderzimmer, Gästezimmer oder Büro genutzt werden kann. Die Räume sind hell und freundlich gestaltet und bieten viel Potenzial zur individuellen Gestaltung. Das ausgebaute Dachgeschoss bietet ein zusätzliches Zimmer, das vielfältig genutzt werden kann. Ob als weiteres Schlafzimmer, Hobbyraum oder Rückzugsort – hier sind Ihrer Kreativität keine Grenzen gesetzt. Dieser Raum ist nicht in der Wohnflächenberechnung enthalten. Das Haus ist teilunterkellert und bietet somit zusätzlichen Stauraum für Ihre persönlichen Gegenstände. Der private Innenhof lädt zum Entspannen und Verweilen ein. Hier finden Sie eine Garage sowie einen Zugang zu einem Außenessbereich mit Terrasse und einem schön angelegten Garten. Genießen Sie sonnige Tage im Freien und lassen Sie den Alltag hinter sich. Dieses Reiheneckhaus ist ideal für Familien oder Paare, die auf der Suche nach einem Zuhause mit Charakter und modernen Annehmlichkeiten sind. Lassen Sie sich von der einzigartigen Kombination aus historischem Flair und zeitgemäßer Ausstattung überzeugen und vereinbaren Sie noch heute einen Besichtigungstermin!

Lage

Die Immobilie, umgeben von Feldern und Wiesen, liegt in einer ruhigen, familienfreundlichen Wohngegend in Viersen. Einkaufsmöglichkeiten, Ärzte und Apotheken sind in unmittelbarer Nähe. Kindergärten und Schulen sind leicht erreichbar, was sie ideal für Familien macht. Die Verkehrsanbindung ist hervorragend: schnelle Erreichbarkeit der Autobahnen A61 und A52 sowie gute Anbindung an den öffentlichen Nahverkehr. Die Nachbarschaft ist sicher und gepflegt, geprägt von Einfamilienhäusern und freundlichen Anwohnern, was eine angenehme Wohnatmosphäre schafft.

41748 Viersen

Die Karte dient lediglich als Orientierungshilfe und stellt nicht die exakte Lage dar. Die vollständige Adresse erhalten Sie bei uns.

Objektdaten

Preise

Kaufpreis

199.000 €

Käuferprovision

3,57% Käuferprovision

Informationen

verfügbar ab

Nach Vereinbarung

Provisionspflichtig

Flächen

Wohnfläche

ca. 69 

Zimmer

3

Grundstücksfläche

ca. 213 

min. teilbare Fläche

ca. 69 

Zustand und Bauart

Baujahr

1927

Zustand

gepflegt

Unterkellert

teilweise

Ausstattung

Bad mit

Dusche, Fenster

Stellplätze

Stellplatz

1

Grundrisse

Energieausweis

Energiedaten

Energieausweistyp

Bedarf

Gültig bis

24.06.2034

Energieeffizienzklasse

F

Baujahr

2012

Befeuerungsart

Gas

Energieeffizienz

A+

A

B

C

D

E

F

G

H

0

30

50

75

100

130

160

200

250

Endenergiebedarf

192,3 kWh/(m²a)