Freihstehendes Einfamilienhaus

41836 Hückelhoven

Objekt-Nr.:20049-3407

249.000 €

Kaufpreis

Beschreibung

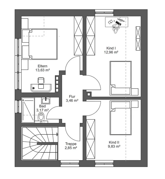
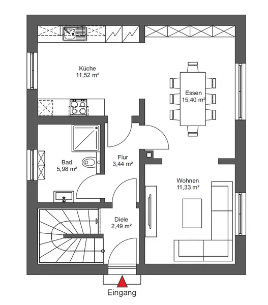
Willkommen in Ihrem neuen Zuhause! Dieses gepflegte Haus in Hückelhoven-Baal bietet alles, was Sie für ein komfortables Familienleben benötigen. Mit seinen ca. 96 m² Wohnfläche auf 4 Zimmern und einem 827 m² großen Grundstück ist es ideal für eine Familie, die nach Platz im Innen- und Außenbereich sucht. Die Küche bietet ausreichend Platz zum Kochen von leckeren Gerichten für die Familie. Hier könnte man sogar Tango tanzen! Unmittelbar daneben befindet sich praktischer Weise das Esszimmer. So kommt alles frisch und heiß auf den Tisch. Stau im Badezimmer gehört nun der Vergangenheit an. Denn hier stehen Ihnen gleich 2 Badezimmer mit Dusche zur Verfügung. Im Garten und auf der Terrasse feiern Sie Feste mit Familie, Freunden und Bekannten. Grillen Sie mit den Nachbarn um die Wette oder genießenSie die Ruhe im Sonnenschein auf der üppigen Terrasse. In diesem tollen Garten können Kinder toben und spielen. Eine Garage bietet Ihrem Auto wetterfeste Unterbringung. Die Immobilie ist voll unterkellert und hat dort einiges an Stauraum zu bieten. Es wurden natürlich auch Modernisierungen vorgenommen. So ist das Dach 2021 komplett neu eingedeckt und die oberste Geschossdecke nachträglich gedämmt worden. Auch wurde die Heizung 2021 ausgetauscht und eine neue, effiziente Gas-Heizung wurde installiert. Ein Jahr später, 2022 wurde die schöne Terrassenüberdachung mit Beleuchtung gebaut. Dieses Haus wartet darauf, von Ihnen entdeckt zu werden. Vereinbaren Sie noch heute einen Besichtigungstermin, um sich selbst von all seinen Vorzügen zu überzeugen.

Lage

Baal ist eine ruhige Ortschaft in der Nähe von Hückelhoven, in NRW. Die Lage von Baal zeichnet sich durch ihre idyllische Umgebung und die gute Erreichbarkeit von Hückelhoven aus. Baal bietet einen ländlichen Charme mit schönen Landschaften, Feldern und Natur. Die ruhige und entspannte Umgebung ist ideal für Menschen, die dem hektischen Stadtleben entfliehen möchten. Die gute Verkehrsanbindung an Hückelhoven und andere umliegende Städte macht Baal zu einem bequemen Ort für Pendler. Auch die A46 ist schnell zu erreichen. Von dort aus sind alle größeren Städte wie Düsseldorf, Köln oder Aachen zu erreichen. Freizeitmöglichkeiten: In der Umgebung von Baal gibt es auch Freizeitmöglichkeiten wie Wander- und Radwege, Parks und Naturreservate, die ideal für Outdoor-Aktivitäten sind. Obwohl Baal eher ländlich ist, gibt es dennoch Einkaufsmöglichkeiten und Dienstleistungen wie Ärzte in der Nähe, die den täglichen Bedarf decken.

41836 Hückelhoven

Die Karte dient lediglich als Orientierungshilfe und stellt nicht die exakte Lage dar. Die vollständige Adresse erhalten Sie bei uns.

Objektdaten

Preise

Kaufpreis

249.000 €

Käuferprovision

Käuferprovisionspflichtig 3,57% inkl. MwSt.

Informationen

verfügbar ab

Nach Vereinbarung

Provisionspflichtig

Modernisierungen

2021

Flächen

Wohnfläche

ca. 96 

Zimmer

4

Grundstücksfläche

ca. 827 

min. teilbare Fläche

ca. 96 

Zustand und Bauart

Baujahr

1959

Zustand

modernisiert

Lage/Gebiet

Ortslage

Bauweise

Massiv

Dachform

Satteldach

Unterkellert

Ja

Räume, Flure und Etagen

Schlafzimmer

3

Badezimmer

2

Wohneinheiten

1

Terrassen

1

Ausstattung

Bad mit

Dusche, Fenster

Küche

Einbauküche

Boden

Fliesen, Laminat

Kabel/Sat-TV

Rolladen

Wasch/Trockenraum

Dachboden

Abstellraum

Stellplätze

Stellplatz

3

Grundrisse

Energieausweis

Energiedaten

Baujahr

1959

Energieausweistyp

Verbrauch

Gültig bis

19.08.2026

Mit Warmwasser

Energieeffizienzklasse

F

Befeuerungsart

Gas

Heizungsart

Zentralheizung

Energieeffizienz

A+

A

B

C

D

E

F

G

H

0

30

50

75

100

130

160

200

250

Endenergieverbrauch

169,2 kWh/(m²a)