NEUBAU - Kamps Carré 2 von 10 Doppelhaushälften nur noch zu haben

46499 Hamminkeln–Hamminkeln

Objekt-Nr.:20048-3429

452.000 €

Kaufpreis

Beschreibung

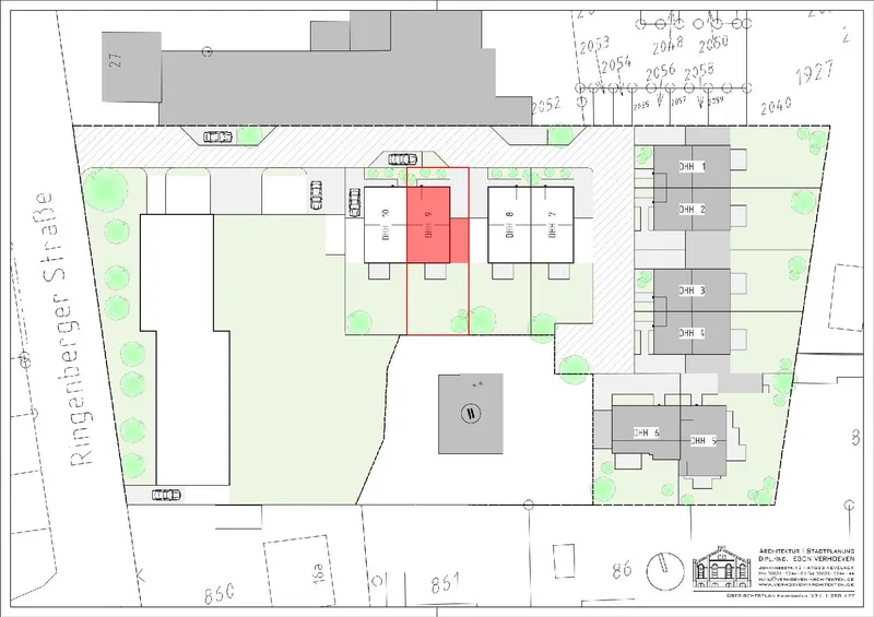
Auf dem ehemaligen Speditionsgelände der Firma Kamps entsteht ein weiteres Wohngebiet in Hamminkeln – Kamps Carré. Wie auch schon in dem Wohngebiet Am Gut Vogelsang errichtet auch hier der Bauträger B und K Wohnbau das beliebte Doppelhaus, nun in modifizierter Variante. Die 2.0 Version für Hamminkeln. Die ersten 6 Doppelhaushälften im 1. Bauabschnitt des Kamps Carrés waren innerhalb kürzester verkauft. In wenigen Wochen wird hier der Baubeginn sein. Die Wohn-und Nutzfläche der in 1 1/2- geschossiger Massivbauweise erstellten Doppelhaushälften beträgt ca.126 m². Zu dem Objekt gehört eine 3m x 7m Garage. Die Grundstücke haben einen optimalen Zuschnitt und eine sonnige Ausrichtung. Moderne Häuser für Familien, die urbanes Wohnen im Grünen bevorzugen! Die Oberböden sind teilweise im Kaufpreis enthalten: Flur, Gäste- WC, Hauswirtschaftsraum, Abstellraum im Erdgeschoss sowie das Badezimmer im Dachgeschoss werden gefliest. Die Kunstoff- ISO- Fenster ( Dreischeiben ) werden mit teilweise elektrisch bedienbaren Rollläden ausgestattet. Beheizt werden die Doppelhäuser mit Hilfe einer modernen Luft-/ Wasserwärmepumpe. Es wird nach Vorgaben des Wärmeschutznachweises und der Baugenehmigung eine PV-Anlage auf dem Satteldach errichtet. Die Eigenstromversorgung ist ohne Speicher. In allen Zimmern im Erd- sowie Dachgeschoss wird eine Fußbodenheizung verlegt. Sollte der Spitzboden komplett ausgebaut werden, so ist auch hier eine Fußbodenheizung vorgesehen. Das großzügige Badezimmer ist mit Badewanne, Dusche sowie Waschbecken und WC ausgestattet. Die Hauszuwegung, die Terrasse sowie der Außenstellplatz vor der Garage werden vom Bauträger gepflastert. Fazit: Familien werden begeistert sein!

Ausstattung

- moderne Luftwärmepumpe als Splitgerät mit wohliger Fußbodenheizung (außer im Spitzboden, wenn nicht ausgebaut) - großzügiger Hausanschluss/-Hauswirtschaftsraum im Erdgeschoss - zusätzlicher Abstellraum im Erdgeschoss - geschlossene Treppe vom Erd- zum Dachgeschoss - Treppe bis zum Spitzboden - Spitzboden teilweise ausgebaut - kompletter Ausbau des Spitzbodens, Sonderwunsch: 8.500,-- EUR Aufpreis - großzügiges Tageslichtbad mit Badewanne und Dusche - 3- Scheiben- Kunststoff- ISO- Fenster, elektrisch bedienbare Rollos (außer im Spitzboden, wenn nicht ausgebaut) - inklusive Garage 3m x 7m mit Außenschlupftür - Terrasse sowie Hauszuwegung und Stellplatz vor der Garage gepflastert - Kaufpreis: von 452.000,00 EUR (Haus 9)

Lage

46499 Hamminkeln Die Stadt Hamminkeln und vor allem diese Grundstückslage bietet Ihnen eine optimale Verkehrsanbindung und gleichzeitig die Möglichkeit, die Geschäfte des täglichen Bedarfs fußläufig zu erreichen. Hierzu zählen mehrere Supermärkte, Banken, Schreibwarengeschäft, Kinderspielzeugladen, Modeläden, Friseursalons, Schuhläden, Apotheke sowie mehrere Getränkeläden. Ärzte sowie Physiotherapie/ Massagepraxis befinden sich ebenfalls direkt vor Ort. Vor kurzem wurde auch noch die neue Grundschule im Ort eröffnet. Die optimale Verkehrsanbindung wird auch unterstrichen durch die die unmittelbare Nähe zur Autobahnauffahrt A3 Richtung Ruhrgebiet/Niederlande. Außerdem sind Sie innerhalb von 15-20 Autominuten in der schönen Shopping-Stadt Bocholt. Gute Anbindung auch nach Wesel gegeben. Bahnhof, Luftlinie 1 km entfernt. Des Weiteren bietet Hamminkeln Ihnen ein breites Spektrum an Freizeit- und Ausgehmöglichkeiten durch verschiedene Restaurants, Eiscafés, Reiterhöfe, Sportvereine uvm. Besonders gut besucht ist im Sommer der Bereich des Hamminkelner Marktplatzes.

46499 Hamminkeln–Hamminkeln

Die Karte dient lediglich als Orientierungshilfe und stellt nicht die exakte Lage dar. Die vollständige Adresse erhalten Sie bei uns.

Objektdaten

Preise

Kaufpreis

452.000 €

Informationen

verfügbar ab

nach Vereinbarung

Provisionspflichtig

Flächen

Wohnfläche

ca. 112 

Zimmer

4,5

Nutzfläche

ca. 14 

Grundstücksfläche

ca. 250 

Zustand und Bauart

Baujahr

2026

Zustand

Erstbezug

Räume, Flure und Etagen

Etagen

1

Schlafzimmer

3

Badezimmer

1

Wohneinheiten

1

Ausstattung

Rolladen

Stellplätze

Garage

1

Grundrisse

Energieausweis

Energiedaten

Baujahr

2026

Befeuerungsart

Elektro, Luft/Wasser-Wärmepumpe

Heizungsart

Fußbodenheizung

Energieausweis

ohne, liegt zur Besichtigung vor