Eine Neubauwohnung mit einem sehr großen Garten und einer tollen Terasse

52372 Kreuzau

Objekt-Nr.:20049-3084

920 €

Kaltmiete

Beschreibung

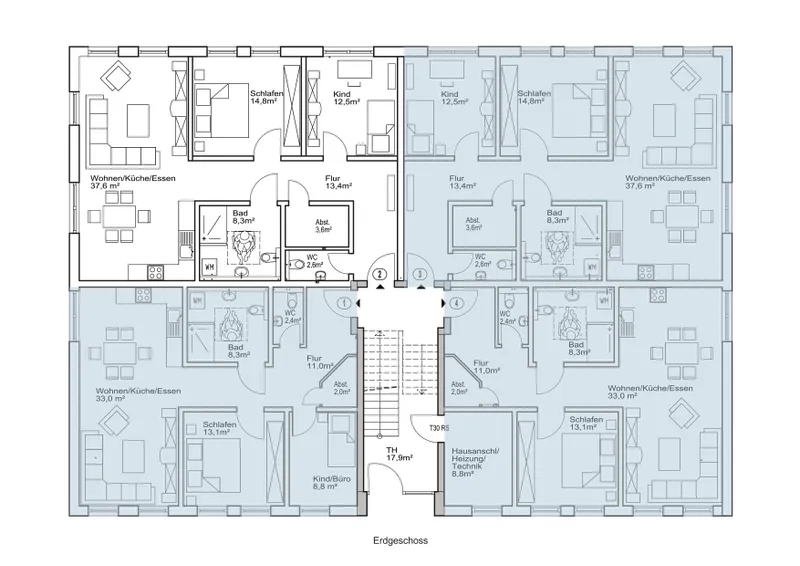
Ein wundervolles Neubauhaus mit zwölf Wohneinheiten in einem Familienwohngebiet und einer sehr angenehmen Gegend. Diese Erdgeschosswohnung ist auf rund 94 m Wohnfläche auf 3 Zimmer verteilt. Hochwertige Ausstattung - Hansgrohe, Busch & Jäger, große Fenster, elektr. Rollläden, sowie moderne Badgarnitur von Villeroy & Boch gestalten die Wohnung zu einem tollen Wohnerlebnis. Ein sehr gut aufgeteilter Grundriss, mit einer durchdachten Raumaufteilung und einer offener Küche lässt Ihnen Raum für Ihr modern eingerichtetes zu Hause. Selbst für Stauraum ist gesorgt, dieser befindet sich nämlich direkt im Flurbereich. Des Weiteren gehören zu den gehobenen Merkmalen: - Fußbodenheizung - E-Anschluss Ladestelle (optional, kann beantragt werden) - Badezimmer mit ebenerdiger Dusche und Villeroy und Boch - Energieeffiziente Luftwärmepumpe Darüber hinaus haben Sie sehr bequeme Parkmöglichkeiten direkt vor dem Haus, somit haben Sie es wirklich bequem die Einkäufe zur Wohnung zu tragen. Auf der nach Süden ausgerichteten Terrasse genießen Sie die Abendstunden und können Ihren Alltag ausklingen lassen. Darüber hinaus haben Sie einen ausgiebig großen und privaten Garten. Ihre Kinder können somit frei und unbedenklich spielen.

Lage

Das moderne Mehrfamilienhaus befindet sich in Düren - Stockheim. Das Örtchen ist von vielen Feldern umrandet und dennoch nah an diversen Einkaufsmöglichkeiten. Ruhe sowie ein tolle Spaziergänge in der Natur und Felder wird Ihr Gemüt erfreuen. Bis zum Zentrum nach Düren sind es nur wenige Fahrminuten - zahlreichen Einkaufsmöglichkeiten werden Sie definitiv vorfinden. Hier finden Sie auch ein Krankenhaus, Ärzte., Restaurants, Banken und Frisöre u.v.m. Eine Anbindung an die öffentlichen Personennahverkehr ist hervorragend.

52372 Kreuzau

Die Karte dient lediglich als Orientierungshilfe und stellt nicht die exakte Lage dar. Die vollständige Adresse erhalten Sie bei uns.

Objektdaten

Preise

Kaltmiete

920 €

Warmmiete

1.133,44 €

Nebenkosten

213,44 €

Kaution

1.840 €

Informationen

verfügbar ab

Nach Vereinbarung

Haustiere erlaubt

Flächen

Wohnfläche

ca. 94 

Zimmer

3

min. teilbare Fläche

ca. 94 

Zustand und Bauart

Baujahr

2021

Kategorie

Gehoben

Zustand

Erstbezug

Lage/Gebiet

Wohngebiet

Ausrichtung Balkon/Terrasse

Süden

Räume, Flure und Etagen

Etagen

2

Schlafzimmer

2

Badezimmer

1

Separate WCs

1

Terrassen

1

Ausstattung

Bad mit

Dusche

Küche

Offene Küche

Boden

Fliesen

Rolladen

Gäste-WC

Stellplätze

Stellplatz

1

Grundrisse

Energieausweis

Baujahr

2021

Energieausweistyp

Bedarf

Heizungsart

Zentralheizung