Beschreibung
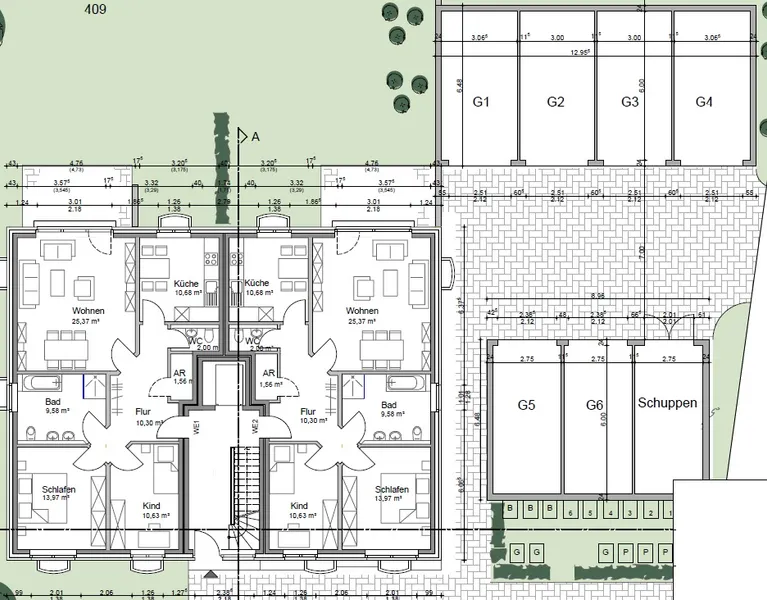
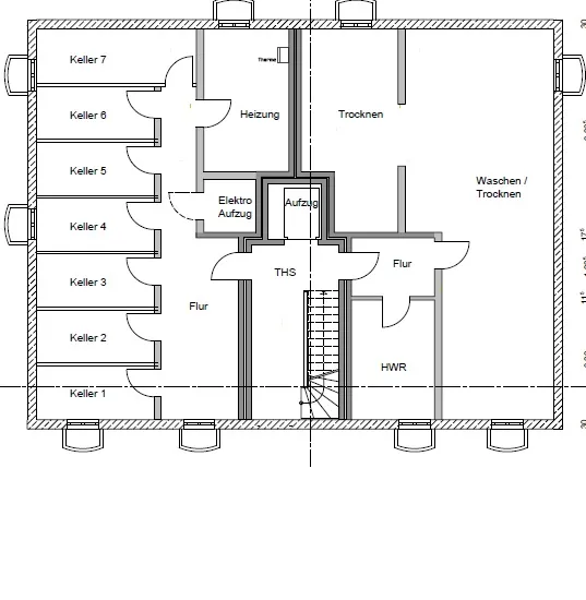
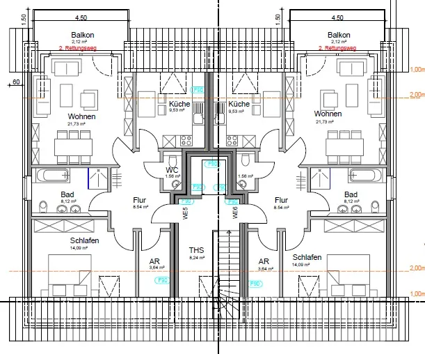
Gebaut wird hier ein 6 Familienhaus mit Vollkeller und 6 Garagen. Die zwei Wohnungen im EG sind mit je 84,10m², die beiden Wohnungen im ersten OG sind mit je ca. 85,79 m² Wohnfläche geplant. Die beiden Wohnungen im DG sind je mit ca. 67,21m² geplant. Alle Wohnungen sind derzeit mit drei Zimmern, Vollbad und Balkon bzw. Terrasse im EG geplant. Somit ergibt sich eine gute Vermarktungsmöglichkeit bei der Vermietung. Es wird ein Vollkeller errichtet in dem die Haustechnik eingebaut wird. Des Weiteren sind hier 6 Mieterkeller ein Wasch- und ein Trockenbereich für die Wäsche eingeplant. Das Gebäude wird über eine Luftwärmepumpe beheizt. Die Außenanlage wird als Grünanlage fertiggestellt.
Lage
Heeren liegt im Südosten der Stadt Kamen, Werve ist der direkte Nachbarort und wird nur durch den Mühlbach von Heeren getrennt. Über Landesstraßen erreichen Sie die nahgelegenen Städte Kamen, Dortmund und Unna schnell und unkompliziert. In Heeren-Werve sind die Grundschule, Sporteinrichtungen, Ärzte, Banken und Einkaufsmöglichkeiten nicht weit entfernt vorhanden. In den Naturgebieten rund um die Seseke und den Mühlbach bieten sich Spaziergänge und Radtouren an. Früher waren beide Bäche mit Betonschalen ausgelegte Kanäle. Durch einen ökologischen Umbau haben beide Bäche einen Teil ihrer naturnahen Gestalt zurückbekommen. Die frühbarocke Wasserschloss-Anlage Haus Heeren ist einer der letzten Vertreter der adeligen Häuser im Kreis Unna. Hier können Sie sogar standesamtlich heiraten.
59174 Kamen–Heeren / Heeren-Werve
Die Karte dient lediglich als Orientierungshilfe und stellt nicht die exakte Lage dar. Die vollständige Adresse erhalten Sie bei uns.
Objektdaten
Preise
Kaufpreis
333.456 €
Mieteinnahmen (Ist)
54.294 €
Käuferprovision
3.57 %
Informationen
verfügbar ab
sofort
Provisionspflichtig
Flächen
Wohnfläche
ca. 84,1 m²
Zimmer
3
Grundstücksfläche
ca. 992 m²
Zustand und Bauart
Baujahr
2022
Zustand
Erstbezug
Räume, Flure und Etagen
Etagen
2
Wohneinheiten
1
Stellplätze
Garage
1
Kaufpreis pro Einheit
12.000 €
Energieausweis
Baujahr
2022
Befeuerungsart
Gas
Energieausweis
ohne, liegt zur Besichtigung vor