ca. 98m² Laden-/Praxisfläche, in Witten-Herbede zu verkaufen

58456 Witten–Witten-Herbede

Objekt-Nr.:91927-7922

175.000 €

Kaufpreis

Beschreibung

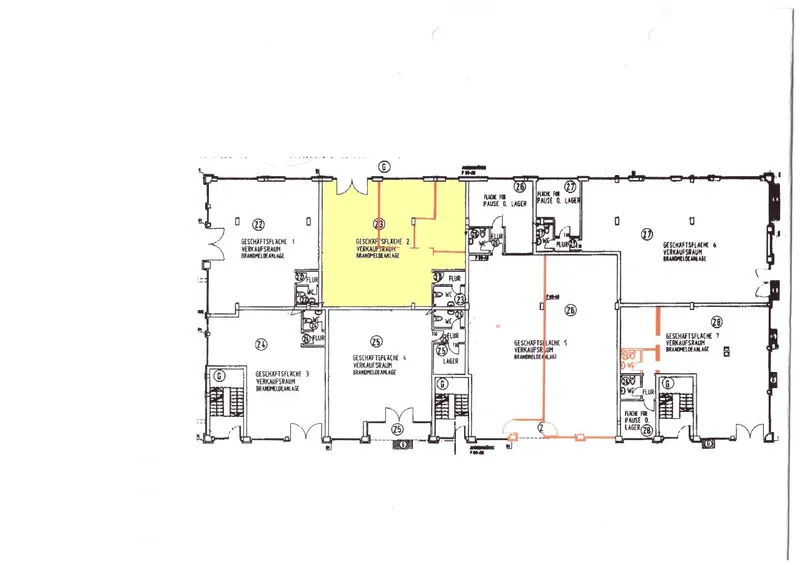
Laden: ca. 98,00m² NfL. 3 Räume, Küche, WC Tiefgaragenstellplatz Hinweis: Das Ladenlokal ist bis zum 30.06.2026 vermietet. Mieteinnahmen EUR 799,- Nettokaltmiete monatlich zzgl. Nebenkosten. Energieausweis in Vorbereitung!!!

Ausstattung

Helles, modernes Ladenlokal, Vinyl-Fußbodenoberbelag, fußbodentiefe Fenster, Wartebereich mit Empfang, 2 Behandlungsräume, Küche, WC-Anlage, abgehängte Kassettendecke mit integrierter Beleuchtung, Rauchwarnmelder, Kunststofffenster mit Isolierverglasung, ebenerdiger Zugang, Tiefgenstellplatz.

Lage

Die Immobilie befindet sich in zentraler Lage von Witten-Herbede mit hervorragender Anbindung an die A43 und A1. Das Objekt selbst ist eine klassische Mischimmobilie mit Gewerbe und Wohnungen in dem u. a. Versicherungsmakler und eine Fahrschule ansässig sind. In direkter Umgebung der Nachbarschaft befinden sich namhafte Ankermieter wie die Volksbank, Netto, EDEKA, Action u. v. a.. Die Mischung aus Wohnen und Gewerbe ist gewachsen und stark ausgeprägt, sodass eine vielfältige Nutzung des Ladenlokals möglich ist. Öffentliche Verkehrsmittel, die Buslinien SB 38, 67, Linie 320, 374 und 375 und der NE 17 halten direkt am Objekt. Zudem sorgt die umliegende Einzelhandelsstruktur für eine gute Parksituation. Witten-Herbede gilt als gefragter Stadtteil mit hoher Kaufkraft und einer gewachsenen Struktur.

58456 Witten–Witten-Herbede

Die Karte dient lediglich als Orientierungshilfe und stellt nicht die exakte Lage dar. Die vollständige Adresse erhalten Sie bei uns.

Objektdaten

Preise

Kaufpreis

175.000 €

Käuferprovision

3.6 %

Informationen

verfügbar ab

sofort

Provisionspflichtig

Flächen

Zimmer

3

Nutzfläche

ca. 98 

Gesamtfläche

ca. 98 

Verkaufsfläche

ca. 98 

Bürofläche

ca. 98 

Zustand und Bauart

Baujahr

1995

Zustand

neuwertig

Stellplätze

Freiplatz

1

Grundrisse

Energieausweis

Baujahr

1995

Energieausweis

ohne, liegt zur Besichtigung vor