Beschreibung
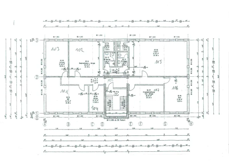
Willkommen in Ihrer neuen Gewerbeimmobilie einem modernen Bürogebäude, das alle Voraussetzungen für eine erfolgreiche Unternehmensführung bietet! Diese großzügige Immobilie erstreckt sich über 250 m² im Obergeschoss und umfasst insgesamt sieben helle Büros, die mit großen Fenstern ausgestattet sind und somit eine lichtdurchflutete Arbeitsatmosphäre schaffen. Die flexible Raumgestaltung ermöglicht es Ihnen, die Büros nach Ihren individuellen Bedürfnissen anzupassen und optimal für verschiedene Projektbereiche zu nutzen. Für Ihre Mitarbeiter stehen zwei Teeküchen bereit, die ideal sind, um in den Pausen neue Energie zu tanken. Die sanitären Einrichtungen sind durch eine separate Herren- und Damentoiletten bestens ausgestattet. Ein weiterer Pluspunkt ist die zentrale Internetverbindung, die demnächst auf Glasfaser umgerüstet wird perfekt für Unternehmen, die auf eine schnelle und zuverlässige Internetverbindung angewiesen sind. Das Gebäude ist komplett alarmgesichert und mit einem Wachdienst rund um die Uhr verbunden. Ihnen stehen sechs Stellplätze á 20 EUR und drei Ladesäulen für Elektrofahrzeuge zur Verfügung. Zusätzlich besteht die Möglichkeit, das vorhandene Inventar zu übernehmen, was Ihnen den Einstieg in Ihre neuen Büroräume erheblich erleichtert. Diese Gewerbeimmobilie bietet nicht nur eine hervorragende Lage und moderne Ausstattung, sondern auch die Flexibilität, die Sie für Ihr Unternehmen benötigen. Lassen Sie sich diese Chance nicht entgehen und gestalten Sie Ihre Geschäftsideen in einem inspirierenden Umfeld! Haben wir Ihr Interesse geweckt, dann vereinbaren Sie noch heute einen Besichtigungstermin mit uns.
Lage
Dortmund-Wickede ist ein Stadtteil im Osten Dortmunds, der durch eine gute Infrastruktur geprägt ist. Die Verkehrsanbindung ist durch die nahegelegene B1, A40 und A1 ideal. Das Stadtzentrum und die umliegenden Regionen sind schnell zu erreichen. Das Objekt liegt im Gewerbegebiet im östlichen Wickede nördlich des Flughafens. Die Anbindung an den öffentlichen Nahverkehr ist sehr gut. In der Nähe befinden sich die Haltestelle Wickede und Dollersweg, die von der S4 bedient werden. Die U-Bahn Linie U43 ist ebenfalls erreichbar. Verschiedene Buslinien der DSW 21 verkehren ebenfalls in Do-Wickede. Die Parkplatzsituation am Objekt ist entspannt, es gibt sowohl öffentliche Parkplätze als auch Parkmöglichkeiten auf dem Gelände.
Rüdigerstr. 1 a, 44319 Dortmund
Objektdaten
Preise
Kaltmiete
1.875 €
Nebenkosten
625,80 €
Kaution
3.750 €
Mieterprovision
1.19 Monatsmieten
Informationen
verfügbar ab
sofort
Provisionspflichtig
Flächen
Zimmer
7
Nutzfläche
ca. 250,32 m²
Gesamtfläche
ca. 250,32 m²
Bürofläche
ca. 250,32 m²
Zustand und Bauart
Baujahr
1998
Kategorie
Standard
Zustand
gepflegt
Räume, Flure und Etagen
Etage
1
Etagen
2
Ausstattung
Boden
Teppich
Stellplätze
Freiplatz
6
Miete pro Einheit
20 €
Energieausweis
Energiedaten
Energieausweistyp
Bedarf
Gültig bis
07.10.2035
Ausstellungsdatum
08.10.2025
Wärmewert
58,7 kWh/(m²a)
Baujahr
1998
Wesentlicher Energieträger
Gas
Befeuerungsart
Gas
Heizungsart
Zentralheizung
Energieeffizienz
A+
A
B
C
D
E
F
G
H
0
30
50
75
100
130
160
200
250
Endenergiebedarf
58,7 kWh/(m²a)