Barrierefreie Erdgeschosswohnung- 18.000EUR Zuschuss

41199 Mönchengladbach

Objekt-Nr.:20049-3020/Whg2

399.000 €

Kaufpreis

Beschreibung

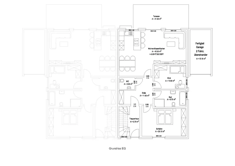
Das moderne Mehrfamilienhaus, mit insgesamt 4 Wohnungen, verfügt über alle Annehmlichkeiten die für Heute und in Zukunft gefragt werden. Die angebotenen 3 Zimmerwohnung befindet sich Erdgeschoss und eignen sich perfekt für kleine Familien oder Paare im besten Alter. Diese Wohnung bietet Ihnen Barrierefreiheit und verfügen zudem über einen eigenen Garten, auf dem Sie Ihren Feierabend in der Abendsonne geniessen können. Der große Wohn- Essbereich mit offener Küche bietet Ihnen viel Platz für Ihre Familie und Gäste. Ein echter Hingucker sind die großzügigen Verglasungen auf der Gartenseite, die die Räume mit viel Licht durchfluten und so eine freundliche Atmosphäre schaffen. Das Badezimmer ist modern gefliest und wird in diesem Angebot sowohl mit einer Dusche als auch einer Badewanne ausgestattet. Ein Gäste-WC ergänzt zusätzlich das Raumangebot. Im Angebot sind auch die Bodenbeläge enthalten. Hier entscheiden Sie selber, was verlegt werden soll. Im Kellergeschoss des Hauses gibt es weit mehr als nur das (obligatorische) Abteil für Umzugskartons: Hier befindet sich zusätzlich die Waschküche mit Trockner sowie ein Fahrradkeller.

Ausstattung

-Innovative Fassadengestaltung -Luftwärmepumpe -Effizienzhaus 55 -Fußbodenheizung -duplex Garage -Barrierefreie Erdgeschosswohnungen -Garten bei Erdgeschosswohnungen -El. Rollläden -Hochwertige Badausstattung -Ebenerdige Dusche -Badewanne -Terrasse -Bodenbeläge nach Wahl

Sonstiges

Auf Grund der Förderung zu einem Effizienzhaus 55, können sich die Käufer diese Förderung,welche hier 18.000,00 EUR beträgt, nach dem Kauf und Fertigstellung wieder zurückholen. Malerarbeiten und Außenanlage sind nicht im Kaufpreis enthalten.

Lage

Ihr neues Zuhause befindet sich in einer ruhigen Sackgasse in einem Neubaugebiet in Odenkirchen, einem beliebten und ruhigen Neubaugebiet in einer gepflegten Nachbarschaft, umgeben von modernen Einfamilienhäusern. Ruhe und Sicherheit prägen die gesamte Wohngegend, wo Ihre Kinder noch auf der Straße toben können und Sie in Ruhe nach einem stressigen Arbeitstag den Kaffee auf der Terrasse oder Balkon genießen können. Ihre Kinder können sich auf dem Spielplatz, der sich in direkter Nähe befindet, austoben. Die kleine Seitenstraße nimmt lediglich den Anliegerverkehr der dort lebenden Bewohner auf. Schauen Sie sich die Umgebung in dem virtuellen Rundgang einfach an: https://tour.ogulo.com/sK2s

41199 Mönchengladbach

Die Karte dient lediglich als Orientierungshilfe und stellt nicht die exakte Lage dar. Die vollständige Adresse erhalten Sie bei uns.

Objektdaten

Preise

Kaufpreis

399.000 €

Informationen

Barrierefrei

Rollstuhlgerecht

Seniorengerecht

Flächen

Wohnfläche

ca. 107,5 

Zimmer

3

min. teilbare Fläche

ca. 107,5 

Zustand und Bauart

Baujahr

2020

Kategorie

Gehoben

Dachform

Satteldach

Unterkellert

Ja

Erschließung

voll erschlossen

Räume, Flure und Etagen

Etagen

2

Schlafzimmer

2

Badezimmer

1

Wohneinheiten

4

Separate WCs

1

Balkone

2

Terrassen

1

Ausstattung

Bad mit

Dusche, Wanne, Fenster

Küche

Offene Küche

Fahrradraum

Rolladen

Gäste-WC

Wasch/Trockenraum

Grundrisse

Energieausweis

Energiedaten

Baujahr

2020

Energieausweistyp

Bedarf

Gültig bis

01.09.2030

Energieeffizienzklasse

A+

Stromwert

5.731 kWh/(m²a)

Befeuerungsart

Luft/Wasser-Wärmepumpe

Heizungsart

Zentralheizung, Fußbodenheizung

Energieeffizienz

A+

A

B

C

D

E

F

G

H

0

30

50

75

100

130

160

200

250

Endenergiebedarf

30,94 kWh/(m²a)