Büro/Praxis zur Miete 53840 Troisdorf

Repräsentative Gewerbeeinheit – zentrale Lage direkt am Bahnhof Troisdorf

Bilder anzeigen (6)
  • Preis auf Anfrage
  • Objekt-Nr.: 66275-8396
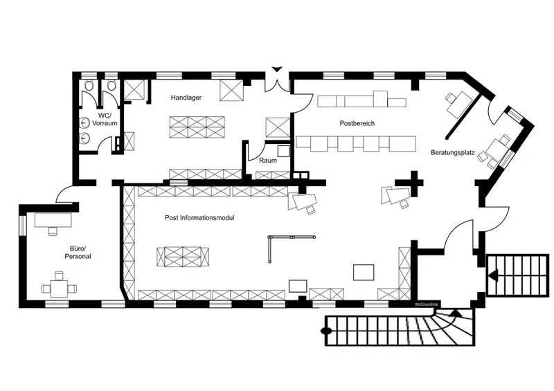
  • 9 Zimmer
  • 351 m² Bürofläche
  • 351 m² Gesamtfläche
Teilen auf:

*Pflichtfelder Ihre Anfrage

Ansprechpartner

Herr Sascha Wagenblasst

Telefon: 00492241174323
s.wagenblasst@immobilien-dp.de

Zur Objektanfrage

Neueste Immobilien

58095 Hagen - ZentrumVollständig renovierte 110m² große Eigentumswohnung in ruhiger Lage nahe der Hagener City!

  • 4
  • 3
  • 2
Wohnfl.: 110 m²

Kaufpreis
209.800 €

57518 VG BetzdorfGroßzügiges Einfamilienhaus in ruhiger Wohnlage von Betzdorf!

  • 5
  • 3
  • 2
Wohnfl.: 215 m²

Kaufpreis
299.000 €

Gerne für Sie da!

Wir stehen für Ihre Fragen und Wünsche gerne zur Verfügung.
Tel.: 02241 / 1743 – 0